www.citify.eu
Statement date: 2025-11-08 21:37:07
Updated: 2025-08-14

Tech Spa Vilnius Verkių g. 51

Verkių g. 51, Verkiai, Vilnius

Hotel • Office center

1 250 000

Developer

Escape Velocity

Certificate

-

Territory

Area size

0.0499 ha

Area density

49 %

Area intensity

1.13

Building footprint

0,00 m2

Amount of greenery

30 %

Technical parameters

Volume

Gross size

561,35 m2

Overground size

Underground size

Useful area

Area for rent

Floors

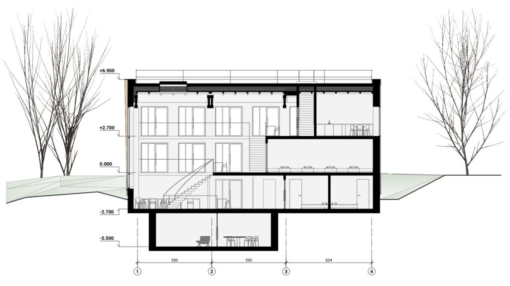
3

Height

7.1 m

Floor size

Office class

-

Energy class

B

Underground floors

1

Transport

6

2

0

Latest viewing

Project proposals
Status

Documents
These are project proposals submitted for public viewing

View the document

Info source

Open


Related companies

Advertisement
U128 Butai Žvėryne
U128 Butai Žvėryne
Butai šiaurinėje Žvėryno dalyje šalia Panoramos. Aukštos lubos ir erdvūs balkonai. Statybų pabaiga jau artėja, registruokis apžiūrai.

Location   Embed

Planned Major repair
Begin

2023

End

2024

Stages
Project ID