www.citify.eu
Statement date: 2026-05-02 21:34:45
Updated: 2025-09-17

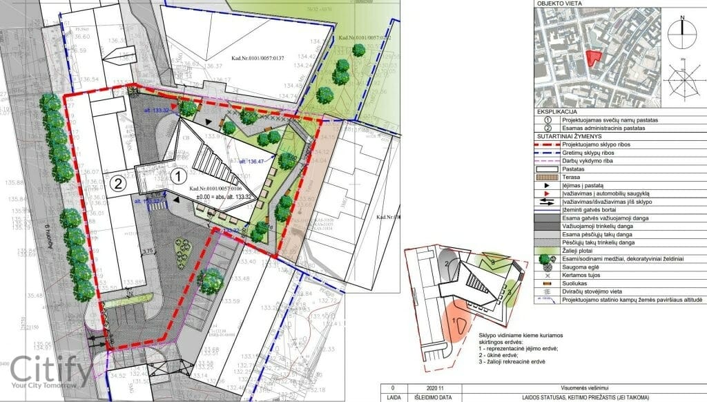
Aguonų g. 26

Aguonų g. 26, Senamiestis, Vilnius

Hotel

-

Developer

Aguonų projektai

Certificate

-

Territory

Area size

0.3104 ha

Area density

55 %

Area intensity

-

Building footprint

0,00 m2

Amount of greenery

15 %

Technical parameters

Volume

Gross size

3 174,00 m2

Overground size

Underground size

Useful area

Area for rent

Floors

6

Height

20 m

Floor size

Office class

-

Energy class

A++

Underground floors

1

Transport

21

0

0

Latest viewing

Related companies

Advertisement
Metų laikai
Metų laikai
4 etapas jau čia!
Dar 187 butai pirkėjų pamėgtame projekte „Metų laikai“. Prasidėjo paskutinio, 4 etapo pardavimai – išsirinkite geriausią variantą jau dabar.

Location   Embed

Planned New construction
Begin

-

End

-

Stages
Project ID