www.citify.eu
Statement date: 2026-01-16 23:54:22
Updated: 2025-08-14

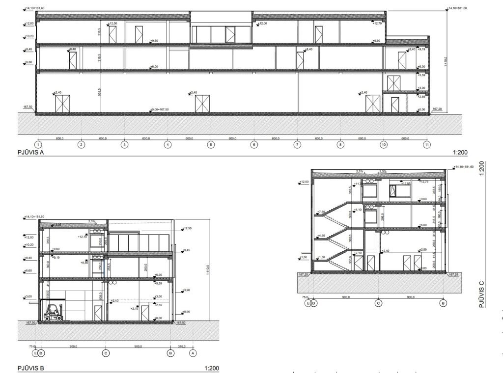
Ateities g. 15A

Ateities g. 15A, Verkiai, Vilnius

Non-food store

-

Developer

ECO sprendimai

Certificate

-

Territory

Area size

0.5105 ha

Area density

38 %

Area intensity

0.6

Building footprint

1 420,00 m2

Amount of greenery

38 %

Technical parameters

Volume

Gross size

2 834,07 m2

Overground size

Underground size

Useful area

Area for rent

Floors

3

Height

14.1 m

Floor size

Office class

-

Energy class

B

Underground floors

0

Transport

37

8

12

Latest viewing

Project proposals
Status

Documents
These are project proposals submitted for public viewing

View the document

Info source

Open


Previous viewings

Related companies

Advertisement
BALTUPIS
BALTUPIS
NAUJI BUTAI NUO 3090 €/m²
Namai, apie kuriuos ilgai svajojote: 2 etape pradinė įmoka tik 2 000 €. Nenorite laukti? 1 etapas jau pastatytas – raktus gaukite iš karto.

Location   Embed

Planned Reconstruction
Begin

-

End

-

Stages
Project ID