www.citify.eu
Statement date: 2026-05-01 02:49:22
Updated: 2024-10-30

Bajorų alėjos 7 etapas

Salaspilio g. 2, Fabijoniškės, Vilnius

Food store • Multi apartment

-

Developer

Eika

Certificate

-

Apartment information

Sales
We don't have this data
Quantity

16

Apartment sizes

- m2

Price per square

- €

Territory

Area size

- ha

Area density

9.7 %

Area intensity

0.19

Building footprint

0,00 m2

Amount of greenery

- %

Technical parameters

Volume

Gross size

1 420,06 m2

Overground size

Underground size

Useful area

Commercial premises

514.42 m2

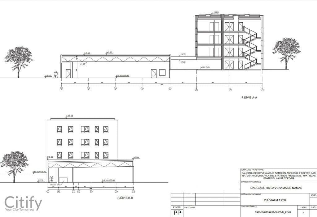
Floors

4

Height

14.7 m

Energy class

A+

Underground floors

0

Transport

33

0

0

Latest viewing

Project proposals
Status

2019-09-24 17:00
Vilniaus miesto savivaldybė, 215 kab., Konstitucijos pr. 3, Vilnius
Documents
These are project proposals submitted for public viewing

View the document

Info source

Open


Related companies

Advertisement
Metų laikai
Metų laikai
4 etapas jau čia!
Dar 187 butai pirkėjų pamėgtame projekte „Metų laikai“. Prasidėjo paskutinio, 4 etapo pardavimai – išsirinkite geriausią variantą jau dabar.

Location   Embed

Planned New construction
Begin

2024 Q4

End

-

Stages
Project ID