www.citify.eu
Statement date: 2026-02-18 18:02:16
Updated: 2024-01-25

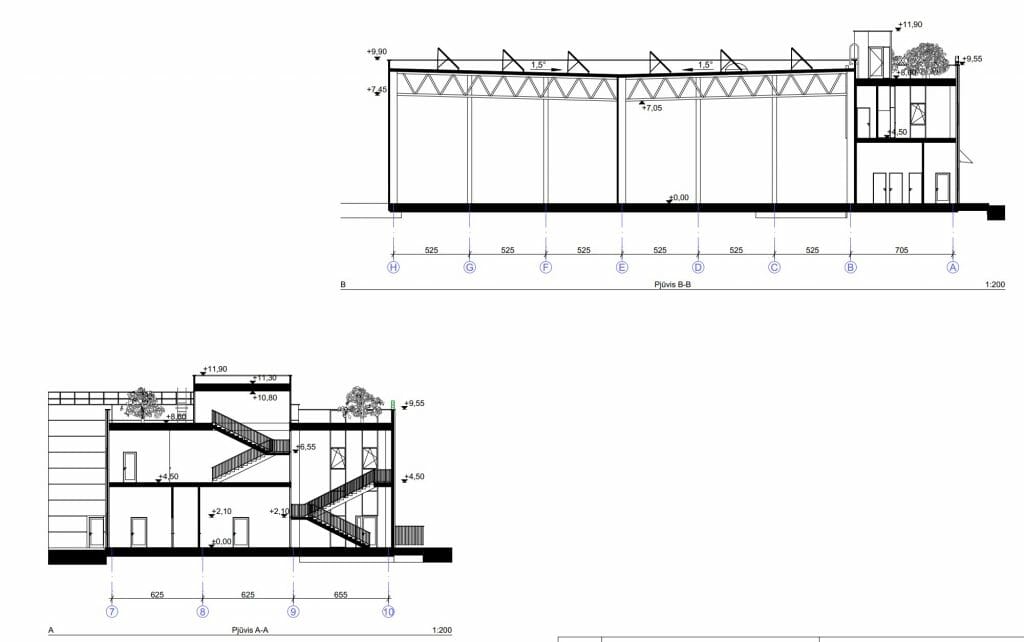
Balex Metal gamykla Liudvinavo g. 123B

Liudvinavo g. 123B, Paneriai, Vilnius

Light manufacturing

-

Developer

Balex Metal

Certificate

-

Territory

Area size

1.3746 ha

Area density

13.02 %

Area intensity

0.13

Building footprint

796,00 m2

Amount of greenery

- %

Technical parameters

Volume

Gross size

1 824,94 m2

Overground size

Underground size

Useful area

Area for rent

Floors

0

Height

11.9 m

Floor size

Office class

-

Energy class

-

Underground floors

0

Transport

27

0

0

Latest viewing

Project proposals
Status

2021-08-03 16:00
Transliacija internetu: us02web.zoom.us/j/83924108938
Documents
These are project proposals submitted for public viewing

View the document

Info source

Open


Related companies

Media articles

Nauji fabrikai projektuojami aplink Vilnių
2021-08-11  ·  vz.lt
Advertisement
SAKAI
SAKAI
Startavo antrasis etapas
Antrajame SAKŲ etape statomi 3- 4 aukštų vilas primenantys namai su išskirtinai jaukia kaimynyste – tik iki 17 butų name.

Location   Embed

Finished New construction
Begin

2022 Q2

End

2023 Q3

Stages
Project ID