www.citify.eu
Statement date: 2026-05-07 09:05:13
Updated: 2025-12-01

Didlaukio g. 67, 67B

Didlaukio g. 67, 67B, Verkiai, Vilnius

Hotel

-

Certificate

-

Premises information

Sales
We don't have this data
Quantity

290

Premises sizes

13 - 26 m2

Price per square

- €

Territory

Area size

0.5139 ha

Area density

43 %

Area intensity

-

Building footprint

2 000,00 m2

Amount of greenery

46 %

Technical parameters

Volume

Gross size

9 320,80 m2

Overground size

Underground size

Useful area

Commercial premises

0 m2

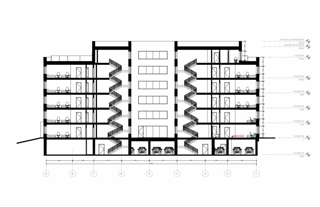
Floors

5

Height

17.05 m

Energy class

A++

Underground floors

1

Transport

127

0

58

Latest viewing

Project proposals
Status

Documents
These are project proposals submitted for public viewing

View the document

Info source

Open


Related companies

Advertisement
Užupio personos
Užupio personos
Gyvenkite Užupyje
Nuolaidos butams Užupyje iki 27 000 €! Pasinaudokite išskirtiniu pasiūlymu, nes progų apsigyventi pastatytame projekte liko mažiau nei 20.

Location   Embed

Planned New construction
Begin

-

End

-

Stages
Project ID