www.citify.eu
Statement date: 2026-05-03 06:44:50
Updated: 2023-08-17

Dienos užimtumo centras Giraitės g. 1A

Giraitės g. 1A, Vilkpėdė, Vilnius

Specialized care center

-

Financing

ES, Vilniaus miesto savivaldybė

Territory

Area size

0.3 ha

Area density

14 %

Area intensity

0.09

Building footprint

249,11 m2

Amount of greenery

55 %

Technical parameters

Volume

Gross size

249,11 m2

Overground size

Underground size

Useful area

Floors

1

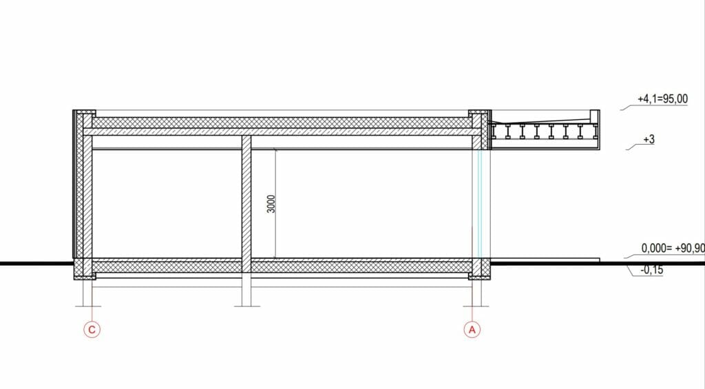
Height

4.1 m

Energy class

A++

Underground floors

0

Transport

7

0

0

Latest viewing

Project proposals
Status

Documents
These are project proposals submitted for public viewing

View the document

Info source

Open


Related companies

Advertisement
Metų laikai
Metų laikai
4 etapas jau čia!
Dar 187 butai pirkėjų pamėgtame projekte „Metų laikai“. Prasidėjo paskutinio, 4 etapo pardavimai – išsirinkite geriausią variantą jau dabar.

Location   Embed

Planned New construction
Begin

-

End

-

Stages
Project ID