www.citify.eu
Statement date: 2026-05-02 21:35:02
Updated: 2026-01-16

Harmony Home Sky Garden

Vēju iela 5A, Vaivari, Jūrmala

Multi apartment

-

Developer

Harmony Home

Certificate

-

Apartment information

Sales
Available: 15 (79%) Reserved: 4 (21%)Sold: 0 (0%)
Quantity

19

Apartment sizes

80 - 184 m2

Price per square

2 767 - 3 767 €

Territory

Area size

0.2744 ha

Area density

- %

Area intensity

-

Building footprint

0,00 m2

Amount of greenery

- %

Technical parameters

Volume

Gross size

0,00 m2

Overground size

Underground size

Useful area

Commercial premises

- m2

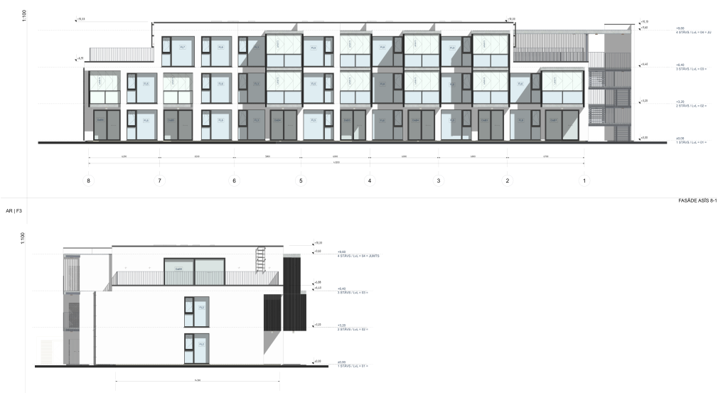
Floors

3

Height

10.33 m

Energy class

A+

Underground floors

0

Transport

18

0

11

No viewings

Related companies

Advertisement
Get full access with Citify Pro membership
From 30 Eur / month
Find business opportunities with full data access and functionality.

Location   Embed

Finished New construction
Begin

2023 Q3

End

2026 Q1

Stages
Project ID