www.citify.eu
Statement date: 2026-05-03 12:33:55
Updated: 2023-03-21

Jogaila

Jogailos g. 9A, Naujamiestis, Vilnius

Office center

-

Certificate

-

Territory

Area size

0.0940 ha

Area density

80 %

Area intensity

3

Building footprint

0,00 m2

Amount of greenery

- %

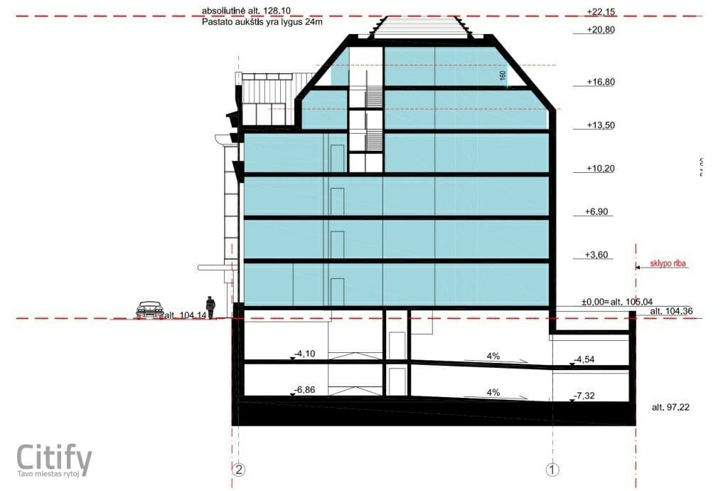
Technical parameters

Volume

Gross size

4 136,90 m2

Overground size

Underground size

Useful area

Area for rent

Floors

4

Height

24 m

Floor size

Office class

-

Energy class

-

Underground floors

2

Transport

45

0

0

Latest viewing

Project proposals
Status

2019-11-21 17:30
Konstitucijos pr. 3-216, Vilnius
Documents
These are project proposals submitted for public viewing

View the document

Info source

Open


Related companies

Advertisement
Metų laikai
Metų laikai
4 etapas jau čia!
Dar 187 butai pirkėjų pamėgtame projekte „Metų laikai“. Prasidėjo paskutinio, 4 etapo pardavimai – išsirinkite geriausią variantą jau dabar.

Location   Embed

Planned Reconstruction
Begin

2022 Q2

End

-

Stages
Project ID