www.citify.eu
Statement date: 2026-03-13 20:12:21
Updated: 2024-02-12

Kauno klinikų Vaikų reabilitacijos korpusas

Eivenių g. 2, Žaliakalnis, Kaunas

Hospital

-

Financing

-

Territory

Area size

32.8621 ha

Area density

20.5 %

Area intensity

0.523

Building footprint

0,00 m2

Amount of greenery

- %

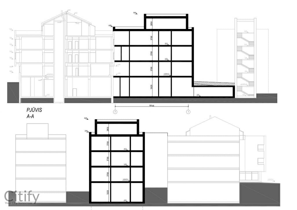
Technical parameters

Volume

Gross size

2 650,00 m2

Overground size

Underground size

Useful area

Floors

4

Height

17.80 m

Energy class

-

Underground floors

1

Transport

-

0

0

Latest viewing

Project proposals
Status

2020-09-16 17:15
Kauno miesto savivaldybė, Mažoji salė, Laisvės al. 96, Kaunas
Documents
These are project proposals submitted for public viewing

View the document

Info source

Open


Related companies

Advertisement
Remarco
Remarco
Prekybos ir biurų erdvės
Markučiuose statomame „Remarco“ verslo centre - prekybos ir biurų patalpos nuomai nuo 50 kv.m.

Location   Embed

Finished New construction
Begin

2022 Q3

End

2023 Q4

Stages
Project ID