www.citify.eu
Statement date: 2026-03-15 08:30:12
Updated: 2025-09-11

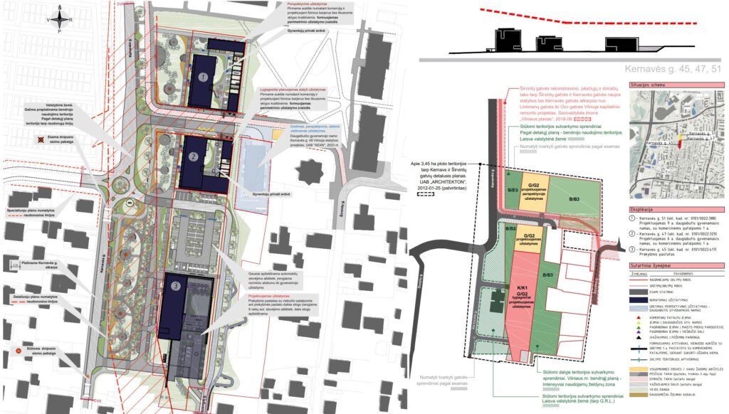
Kernavės g. 45

Kernavės g. 45, Šnipiškės, Vilnius

Co-living • Food store

-

Developer

Eunetas

Certificate

-

Premises information

Sales
We don't have this data
Quantity

35

Premises sizes

18 - 37 m2

Price per square

- €

Territory

Area size

0.4109 ha

Area density

40.37 %

Area intensity

0.67

Building footprint

1 416,50 m2

Amount of greenery

- %

Technical parameters

Volume

Gross size

2 876,10 m2

Overground size

Underground size

Useful area

Commercial premises

1419.71 m2

Floors

4

Height

18.78 m

Energy class

A++

Underground floors

1

Transport

66

66

22

Latest viewing

Project proposals
Status

2023-05-15 16:00
Documents
These are project proposals submitted for public viewing

View the document View the document

Info source

Open


Related companies

Advertisement
Remarco
Remarco
Prekybos ir biurų erdvės
Markučiuose statomame „Remarco“ verslo centre - prekybos ir biurų patalpos nuomai nuo 50 kv.m.

Location   Embed

Planned New construction
Begin

-

End

-

Stages
Project ID