www.citify.eu
Statement date: 2026-05-02 23:21:32
Updated: 2026-02-16

Lienes iela 5

Lienes iela 5, Avoti, Rīga

Multi apartment

-

Developer

Rental – SV

Certificate

-

Apartment information

Sales
We don't have this data
Quantity

35

Apartment sizes

34 m2

Price per square

- €

Territory

Area size

0.14 ha

Area density

- %

Area intensity

-

Building footprint

0,00 m2

Amount of greenery

- %

Technical parameters

Volume

Gross size

0,00 m2

Overground size

Underground size

Useful area

Commercial premises

- m2

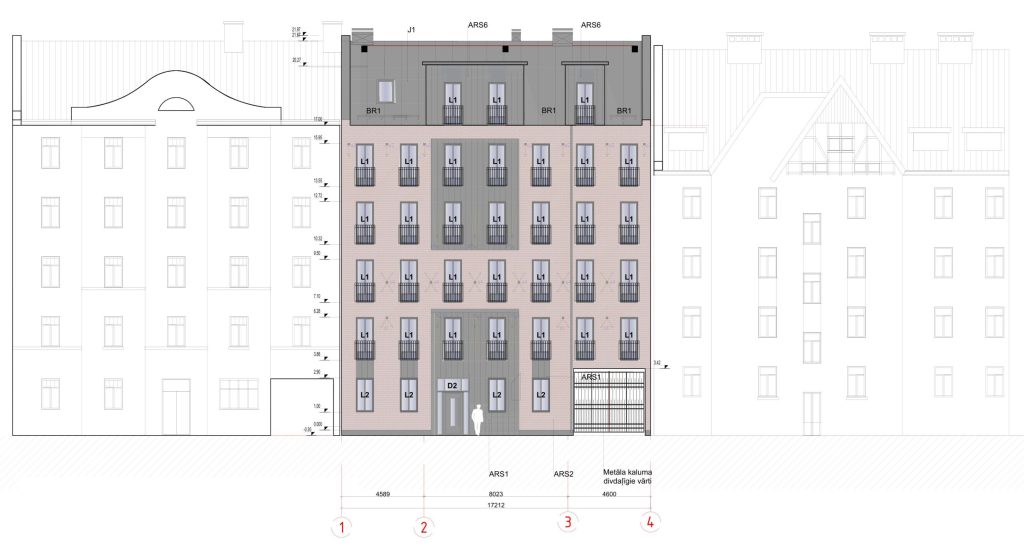
Floors

6

Height

21.67 m

Energy class

-

Underground floors

0

Transport

21

0

12

Latest viewing

Project proposals
-
Dzirnavu iela 140
Documents
These are project proposals submitted for public viewing

View the document

Info source

Open


Related companies

Media articles

Project for sale - €550,000
2026-02-16  ·  estatelatvia.com
Advertisement
Get full access with Citify Pro membership
From 30 Eur / month
Find business opportunities with full data access and functionality.

Location   Embed

Planned New construction
Begin

-

End

-

Stages
Project ID