www.citify.eu
Statement date: 2026-05-10 21:08:31
Updated: 2024-01-11

Liepkalnio g. 135

Liepkalnio g. 135, Naujininkai, Vilnius

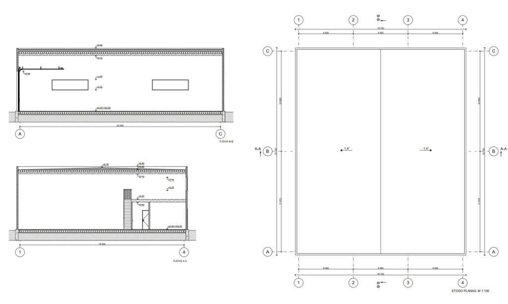
Warehouse / Distribution center

-

Developer

TransDylas

Certificate

-

Territory

Area size

1.2592 ha

Area density

4 %

Area intensity

0.05

Building footprint

437,00 m2

Amount of greenery

15 %

Technical parameters

Volume

Gross size

537,99 m2

Overground size

Underground size

Useful area

Area for rent

Floors

1

Height

7.3 m

Floor size

Office class

-

Energy class

-

Underground floors

0

Transport

8

0

0

Latest viewing

Project proposals
Status

Documents
These are project proposals submitted for public viewing

View the document

Info source

Open


Related companies

Advertisement
Užupio personos
Užupio personos
Gyvenkite Užupyje
Nuolaidos butams Užupyje iki 27 000 €! Pasinaudokite išskirtiniu pasiūlymu, nes progų apsigyventi pastatytame projekte liko mažiau nei 20.

Location   Embed

Finished New construction
Begin

-

End

-

Stages
Project ID