www.citify.eu
Statement date: 2026-05-06 18:39:08
Updated: 2026-03-25

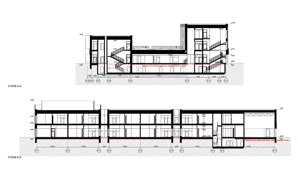
Lopšelis - darželis Kernavės g. 82

Kernavės g. 82, Šnipiškės, Vilnius

Primary and secondary education

9 000 000

Financing

-

Territory

Area size

0.6464 ha

Area density

40 %

Area intensity

0.6

Building footprint

2 573,00 m2

Amount of greenery

50 %

Technical parameters

Volume

Gross size

4 156,05 m2

Overground size

Underground size

Useful area

Floors

3

Height

14.10 m

Energy class

A++

Underground floors

1

Transport

7

2

13

Latest viewing

Project proposals
Status

2024-09-25 16:00
Documents
These are project proposals submitted for public viewing

View the document

Info source

Open


Related companies

Public tender

New

Date

2022-09-21

Opening of offers

2022-12-23

Number

624634

Documents

Documents

Advertisement
Užupio personos
Užupio personos
Gyvenkite Užupyje
Nuolaidos butams Užupyje iki 27 000 €! Pasinaudokite išskirtiniu pasiūlymu, nes progų apsigyventi pastatytame projekte liko mažiau nei 20.

Location   Embed

Planned New construction
Begin

-

End

2028 Q1

Stages
Project ID