www.citify.eu
Statement date: 2026-05-10 01:54:06
Updated: 2025-10-14

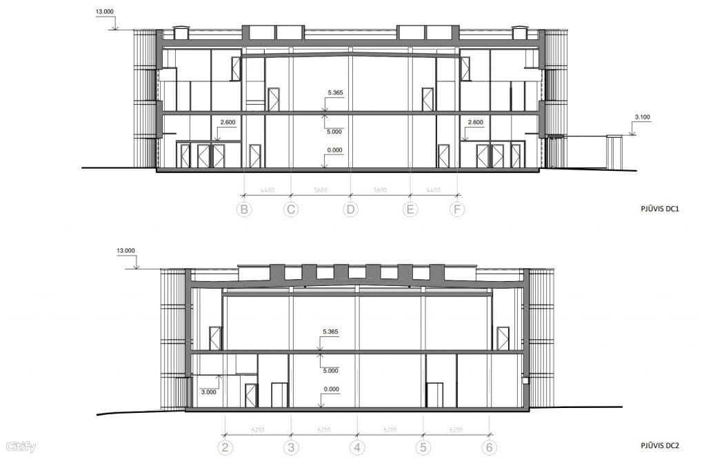
LRTC duomenų centras DC3

Sausio 13-osios g. 10, Karoliniškės, Vilnius

Data center

10 000 000

Financing

-

Territory

Area size

- ha

Area density

- %

Area intensity

-

Building footprint

1 262,00 m2

Amount of greenery

- %

Technical parameters

Volume

Gross size

2 016,00 m2

Overground size

Underground size

Useful area

Floors

2

Height

13.1 m

Energy class

A++

Underground floors

0

Transport

7

0

0

Latest viewing

Related companies

Advertisement
Užupio personos
Užupio personos
Gyvenkite Užupyje
Nuolaidos butams Užupyje iki 27 000 €! Pasinaudokite išskirtiniu pasiūlymu, nes progų apsigyventi pastatytame projekte liko mažiau nei 20.

Location   Embed

Finished New construction
Begin

2023 Q1

End

2024 Q3

Stages
Project ID