www.citify.eu
Statement date: 2026-04-29 20:57:46
Updated: 2025-05-08

M. Riomerio g. 37

M. Riomerio g. 37, Gričiupis, Kaunas

Multi apartment

-

Developer

Monrela

Certificate

-

Apartment information

Sales
We don't have this data
Quantity

12

Apartment sizes

- m2

Price per square

- €

Territory

Area size

0.4441 ha

Area density

22 %

Area intensity

0.55

Building footprint

0,00 m2

Amount of greenery

- %

Technical parameters

Volume

Gross size

3 655,91 m2

Overground size

Underground size

Useful area

Commercial premises

0 m2

Floors

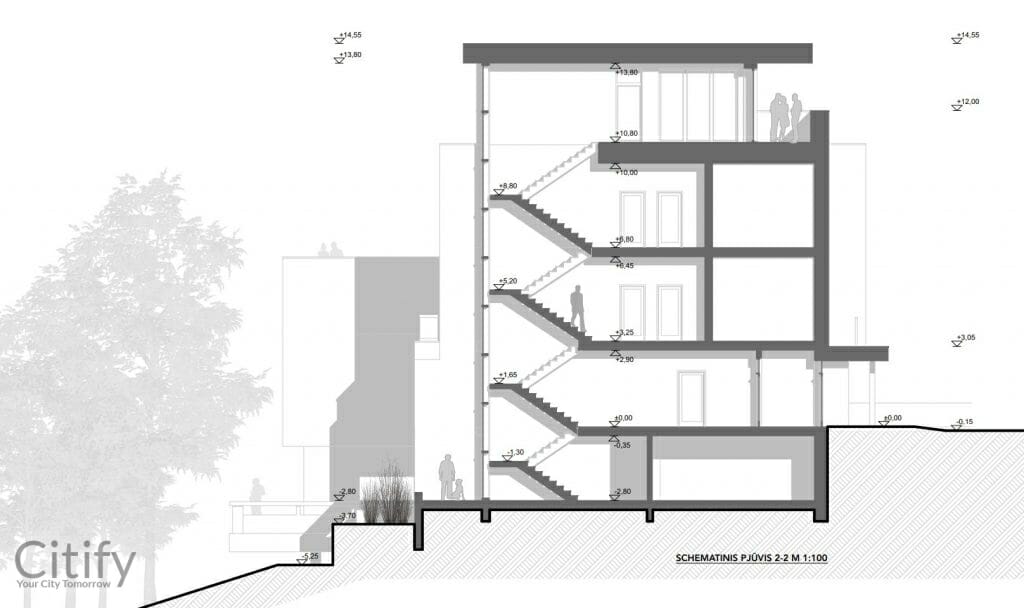
3

Height

16.6 m

Energy class

-

Underground floors

0

Transport

48

0

0

Latest viewing

Project proposals
Status

2020-07-03 16:00
Gričiūpio seniūnija, Gričiupio g. 11, Kaunas
Documents
These are project proposals submitted for public viewing

View the document

Info source

Open


Related companies

Advertisement
Metų laikai
Metų laikai
4 etapas jau čia!
Dar 187 butai pirkėjų pamėgtame projekte „Metų laikai“. Prasidėjo paskutinio, 4 etapo pardavimai – išsirinkite geriausią variantą jau dabar.

Location   Embed

Planned New construction
Begin

2024 Q1

End

2025 Q4

Stages
Project ID