www.citify.eu
Statement date: 2026-05-09 10:30:31
Updated: 2026-04-03

Magnatuk Vismaliukų g. 34

Vismaliukų g. 34, Antakalnis, Vilnius

Light manufacturing

-

Developer

Magnatuk

OTOI

Certificate

-

Territory

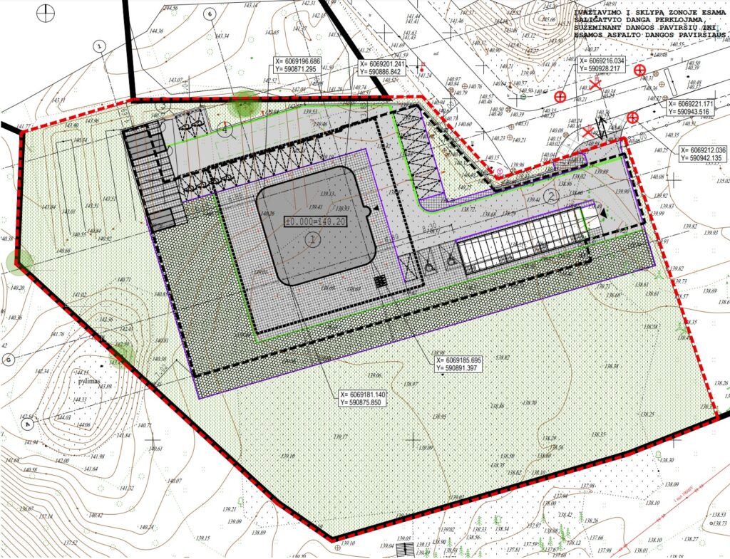
Area size

0.7923 ha

Area density

17 %

Area intensity

0.15

Building footprint

1 331,00 m2

Amount of greenery

66 %

Technical parameters

Volume

Gross size

2 753,15 m2

Overground size

Underground size

Useful area

Area for rent

Floors

2

Height

9 m

Floor size

Office class

-

Energy class

A++

Underground floors

1

Transport

33

6

0

Latest viewing

Project proposals
Status

Documents
These are project proposals submitted for public viewing

View the document View the document

Info source

Open


Related companies

Advertisement
Užupio personos
Užupio personos
Gyvenkite Užupyje
Nuolaidos butams Užupyje iki 27 000 €! Pasinaudokite išskirtiniu pasiūlymu, nes progų apsigyventi pastatytame projekte liko mažiau nei 20.

Location   Embed

Undergoing New construction
Begin

2024 Q4

End

2026 Q1

Stages
Project ID