www.citify.eu
Statement date: 2026-05-01 11:16:59
Updated: 2025-08-14

Mechanikų g. 77

Mechanikų g. 77, Naujininkai, Vilnius

Warehouse / Distribution center

-

Developer

Arbana

Certificate

-

Territory

Area size

0.2396 ha

Area density

30 %

Area intensity

0.45

Building footprint

0,00 m2

Amount of greenery

- %

Technical parameters

Volume

Gross size

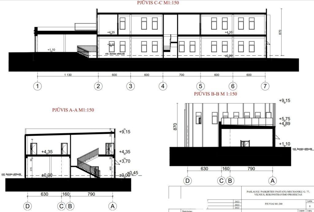
1 076,16 m2

Overground size

Underground size

Useful area

Area for rent

Floors

2

Height

8.7 m

Floor size

Office class

-

Energy class

-

Underground floors

0

Transport

12

5

4

Latest viewing

Project proposals
Status

Documents
These are project proposals submitted for public viewing

View the document

Info source

Open


Related companies

Advertisement
Metų laikai
Metų laikai
4 etapas jau čia!
Dar 187 butai pirkėjų pamėgtame projekte „Metų laikai“. Prasidėjo paskutinio, 4 etapo pardavimai – išsirinkite geriausią variantą jau dabar.

Location   Embed

Planned Reconstruction
Begin

-

End

-

Stages
Project ID