www.citify.eu
Statement date: 2026-04-30 02:25:47
Updated: 2025-10-11

Namas Padekaniškių vs.

Padekaniškių vs., Pilaitė, Vilnius

Row housing

-

Developer

BTT Prekyba

Certificate

-

Houses information

Sales
We don't have this data
Quantity

4

Houses sizes

134 m2

Price per square

- €

Territory

Area size

- ha

Area density

18 %

Area intensity

0.37

Building footprint

0,00 m2

Amount of greenery

- %

Technical parameters

Volume

Gross size

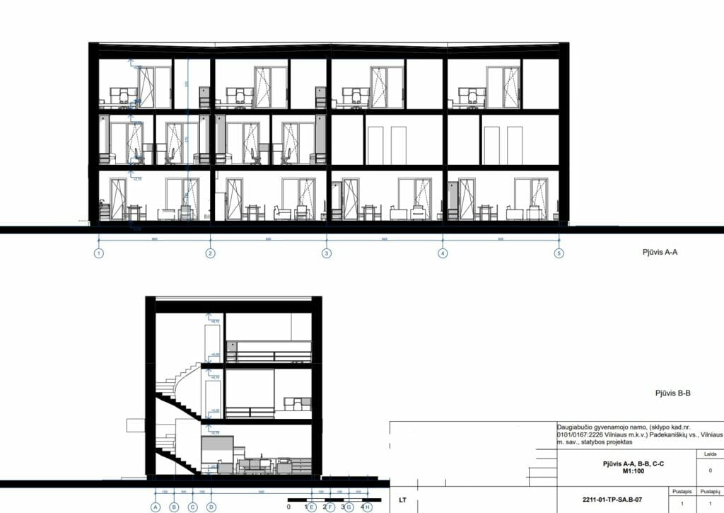
534,16 m2

Overground size

Underground size

Useful area

Commercial premises

0 m2

Floors

3

Height

11.5 m

Energy class

A++

Underground floors

0

Transport

4

0

0

Latest viewing

Project proposals
Status

Documents
These are project proposals submitted for public viewing

View the document

Info source

Open


Related companies

Advertisement
Metų laikai
Metų laikai
4 etapas jau čia!
Dar 187 butai pirkėjų pamėgtame projekte „Metų laikai“. Prasidėjo paskutinio, 4 etapo pardavimai – išsirinkite geriausią variantą jau dabar.

Location   Embed

Planned New construction
Begin

-

End

-

Stages
Project ID