www.citify.eu
Statement date: 2026-05-14 15:30:41
Updated: 2026-04-22

Pentasweet gamykla

Vismaliukų g. 34, Antakalnis, Vilnius

Light manufacturing

65 000 000

Developer

Pentasweet

Certificate

-

Territory

Area size

1.2671 ha

Area density

28 %

Area intensity

0.59

Building footprint

0,00 m2

Amount of greenery

35 %

Technical parameters

Volume

Gross size

7 478,30 m2

Overground size

Underground size

Useful area

Area for rent

Floors

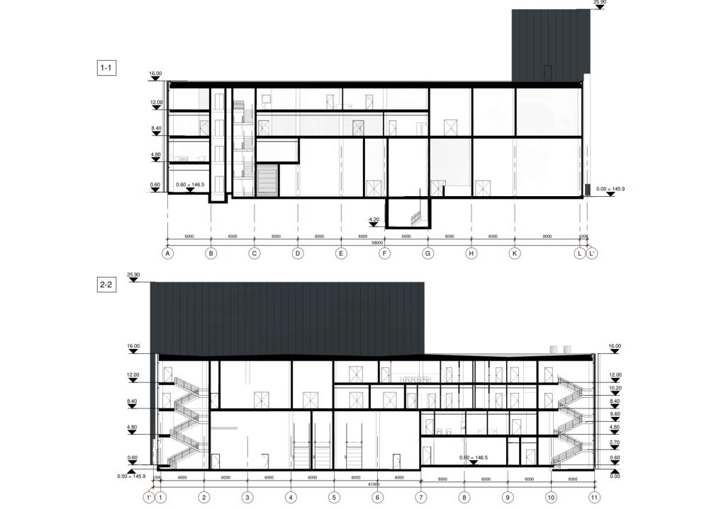
4

Height

16 m

Floor size

Office class

-

Energy class

A++

Underground floors

0

Transport

37

7

3

Latest viewing

Related companies

Advertisement
Užupio personos
Užupio personos
Gyvenkite Užupyje
Nuolaidos butams Užupyje iki 27 000 €! Pasinaudokite išskirtiniu pasiūlymu, nes progų apsigyventi pastatytame projekte liko mažiau nei 20.

Location   Embed

Undergoing New construction
Begin

2026 Q1

End

2027 Q1

Stages
Project ID