www.citify.eu
Statement date: 2026-05-03 06:43:56
Updated: 2026-01-27

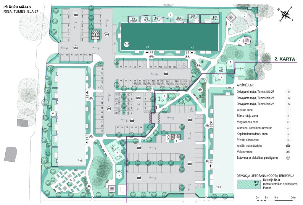
Pīlādžu mājas - 2. kārta, 2-3. ēkas

Tumes iela 27, 27A, Ziepniekkalns, Rīga

Multi apartment

10 700 000

Developer

Bonava Latvija

Certificate

-

Apartment information

Sales
Available: 45 (38%) Reserved: 5 (4%)Sold: 68 (58%)
Quantity

118

Apartment sizes

38 - 80 m2

Price per square

2 226 - 2 600 €

Territory

Area size

0.8741 ha

Area density

- %

Area intensity

-

Building footprint

0,00 m2

Amount of greenery

- %

Technical parameters

Volume

Gross size

0,00 m2

Overground size

Underground size

Useful area

Commercial premises

- m2

Floors

6

Height

0 m

Energy class

-

Underground floors

0

Transport

-

0

0

No viewings

Related companies

Advertisement
Get full access with Citify Pro membership
From 30 Eur / month
Find business opportunities with full data access and functionality.

Location   Embed

Finished New construction
Begin

2025 Q1

End

2026 Q1

Stages
Project ID