www.citify.eu
Statement date: 2026-05-09 12:19:41
Updated: 2021-09-11

Prancūzų g. 58

Prancūzų g. 58, Šančiai, Kaunas

Multi apartment

-

Developer

Private person

Certificate

-

Apartment information

Sales
We don't have this data
Quantity

6

Apartment sizes

- m2

Price per square

- €

Territory

Area size

0.0706 ha

Area density

34 %

Area intensity

Building footprint

0,00 m2

Amount of greenery

30 %

Technical parameters

Volume

Gross size

508,90 m2

Overground size

Underground size

Useful area

Commercial premises

158 m2

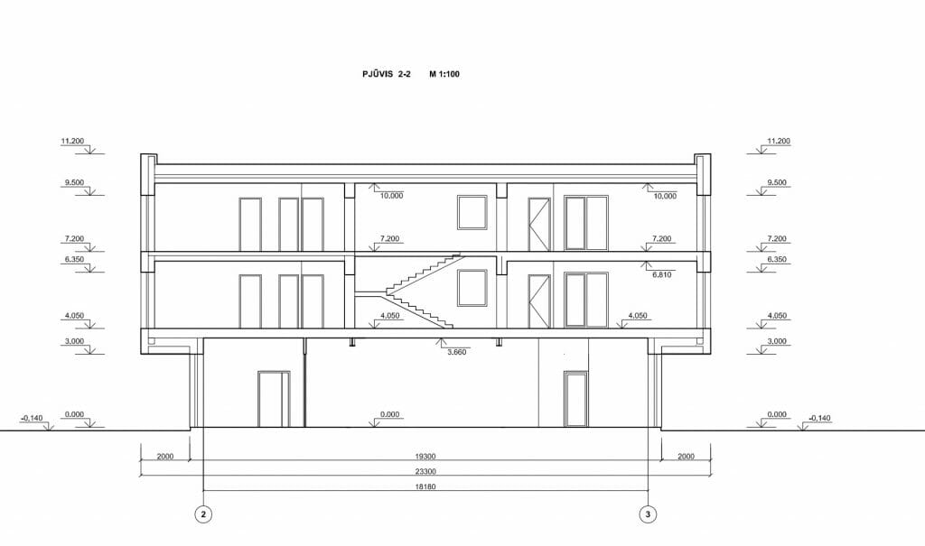
Floors

3

Height

11.40 m

Energy class

-

Underground floors

0

Transport

9

2

0

Latest viewing

Project proposals
Status

2020-06-29 17:30
Prancūzų g. 58, Kaunas
Documents
These are project proposals submitted for public viewing

View the document

Info source

Open


Related companies

Advertisement
Užupio personos
Užupio personos
Gyvenkite Užupyje
Nuolaidos butams Užupyje iki 27 000 €! Pasinaudokite išskirtiniu pasiūlymu, nes progų apsigyventi pastatytame projekte liko mažiau nei 20.

Location   Embed

Planned New construction
Begin

-

End

-

Stages
Project ID