www.citify.eu
Statement date: 2026-05-01 07:39:48
Updated: 2025-06-18

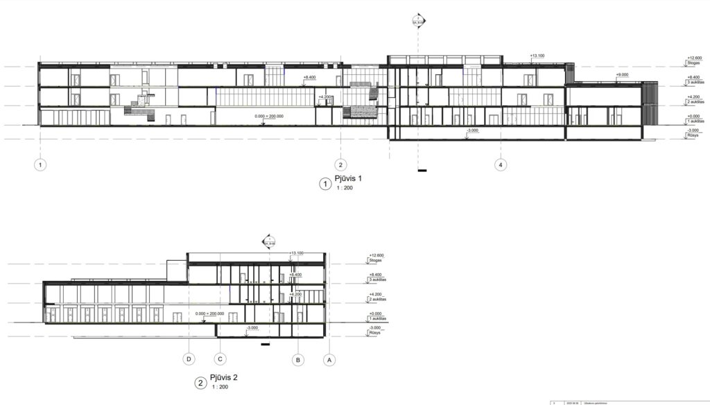
Progimnazija Stasio Lozoraičio g. 95

Stasio Lozoraičio g. 95, Naujoji Vilnia, Vilnius

Primary and secondary education

26 000 000

Financing

-

Territory

Area size

2.4688 ha

Area density

20 %

Area intensity

0.5

Building footprint

5 053,00 m2

Amount of greenery

40 %

Technical parameters

Volume

Gross size

12 000,00 m2

Overground size

Underground size

Useful area

Floors

3

Height

15 m

Energy class

A++

Underground floors

1

Transport

34

7

100

Latest viewing

Project proposals
Status

Documents
These are project proposals submitted for public viewing

View the document

Info source

Open


Previous viewings

Project proposals
Documents
These are project proposals submitted for public viewing

View the document

Info source

Open


Related companies

Public tender

New

Advertisement
Metų laikai
Metų laikai
4 etapas jau čia!
Dar 187 butai pirkėjų pamėgtame projekte „Metų laikai“. Prasidėjo paskutinio, 4 etapo pardavimai – išsirinkite geriausią variantą jau dabar.

Location   Embed

Planned New construction
Begin

-

End

2027 Q3

Stages
Project ID