www.citify.eu
Statement date: 2026-05-07 00:28:32
Updated: 2025-08-14

Pylimėlių g. 42

Pylimėlių g. 42, Antakalnis, Vilnius

Multi apartment

-

Developer

Restoda

Certificate

-

Apartment information

Sales
We don't have this data
Quantity

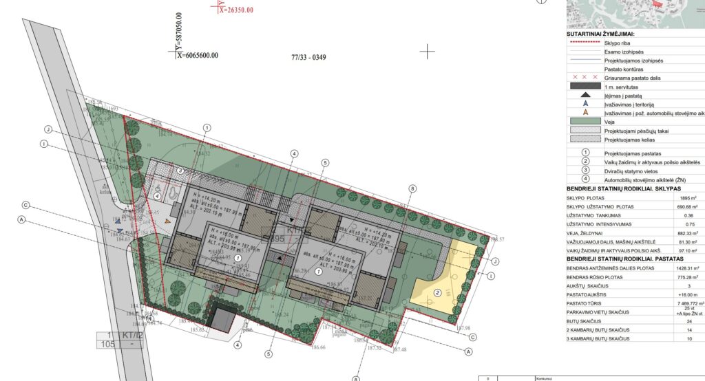
24

Apartment sizes

37 - 68 m2

Price per square

- €

Territory

Area size

0.1895 ha

Area density

36 %

Area intensity

0.75

Building footprint

690,68 m2

Amount of greenery

46.5 %

Technical parameters

Volume

Gross size

2 205,59 m2

Overground size

Underground size

Useful area

Commercial premises

0 m2

Floors

3

Height

16 m

Energy class

A++

Underground floors

1

Transport

26

8

8

Latest viewing

Project proposals
Status

Documents
These are project proposals submitted for public viewing

View the document View the document

Info source

Open


Previous viewings

Project proposals
Documents
These are project proposals submitted for public viewing

View the document

Info source

Open


Related companies

Advertisement
Užupio personos
Užupio personos
Gyvenkite Užupyje
Nuolaidos butams Užupyje iki 27 000 €! Pasinaudokite išskirtiniu pasiūlymu, nes progų apsigyventi pastatytame projekte liko mažiau nei 20.

Location   Embed

Planned New construction
Begin

-

End

-

Stages
Project ID