www.citify.eu
Statement date: 2026-04-29 21:58:46
Updated: 2026-03-17

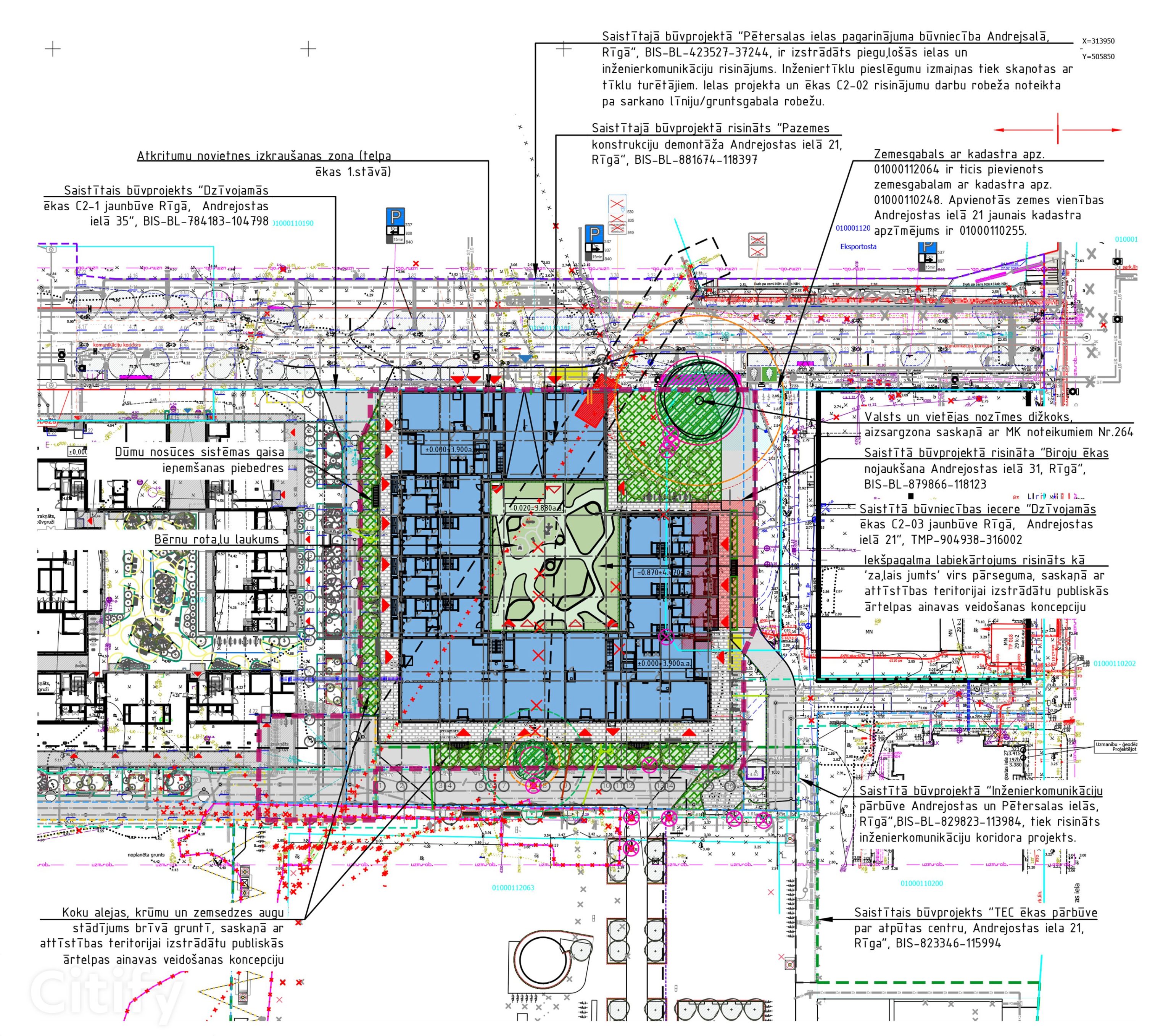
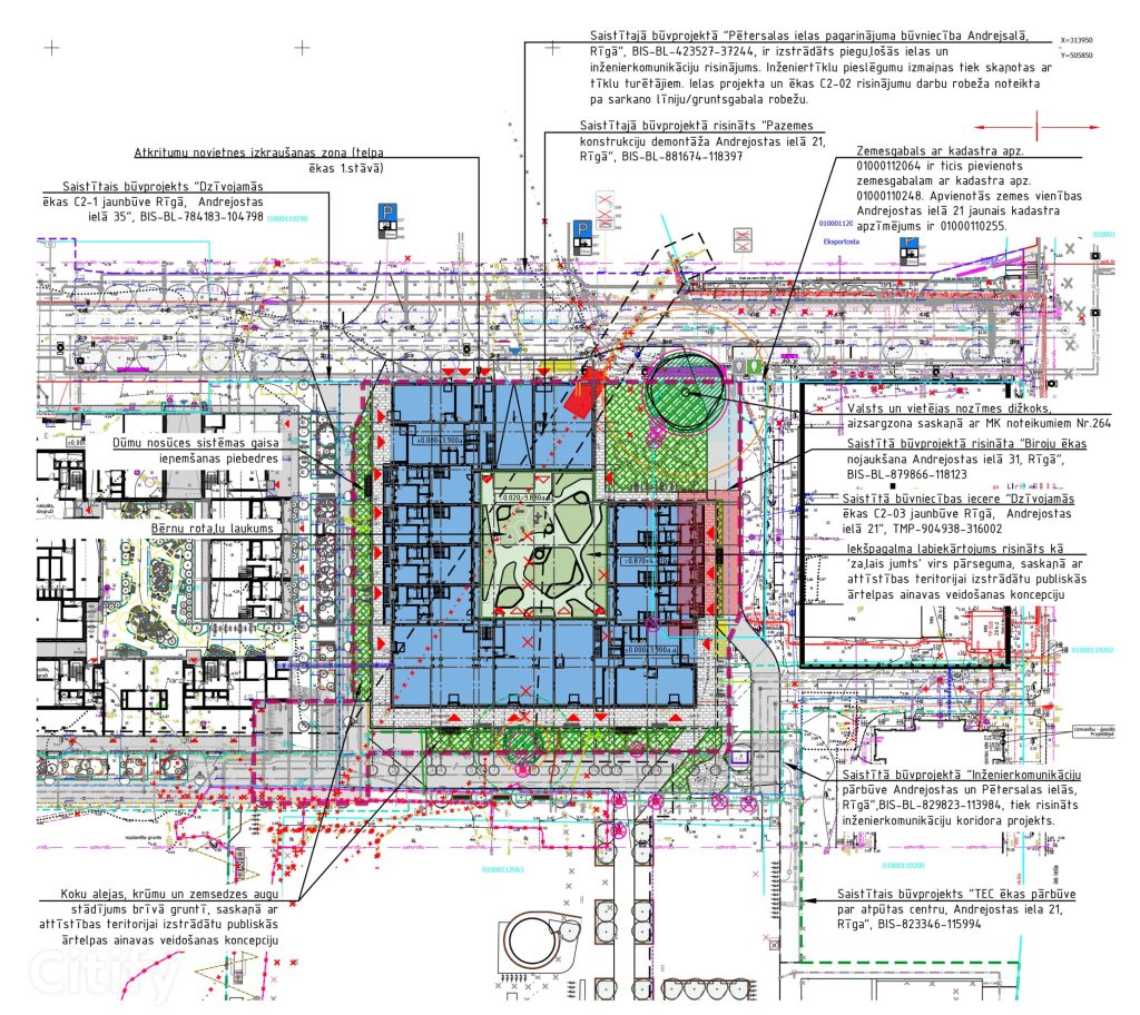
Riga Waterfront - Bayside Residences

Andrejostas iela 21, Pētersala-Andrejsala, Rīga

Multi apartment

-

Certificate

-

Apartment information

Sales
We don't have this data
Quantity

117

Apartment sizes

- m2

Price per square

- €

Territory

Area size

0.6347 ha

Area density

33.8 %

Area intensity

1.513

Building footprint

2 877,00 m2

Amount of greenery

41.58 %

Technical parameters

Volume

Gross size

16 633,90 m2

Overground size

Underground size

Useful area

Commercial premises

- m2

Floors

8

Height

17.93 m

Energy class

-

Underground floors

1

Transport

93

11

167

Latest viewing

Detail plan
2026-04-02 16:00  -  2026-04-02 18:00
SIA “RIGA WATERFRONT DEVELOPMENT” birojā Eksporta ielā 3A
Documents
These are project proposals submitted for public viewing

View the document View the document View the document View the document View the document

Info source

Open


Related companies

Advertisement
Get full access with Citify Pro membership
From 30 Eur / month
Find business opportunities with full data access and functionality.

Location   Embed

Planned New construction
Begin

-

End

-

Stages
Project ID