www.citify.eu
Statement date: 2026-05-07 12:13:40
Updated: 2026-01-26

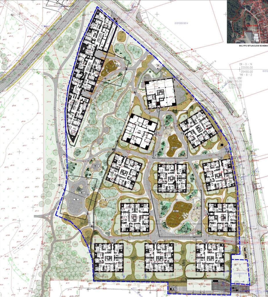
Sakai (Miško vilos) 1 etapas

Parodų g. 11, Lazdynai, Vilnius

Multi apartment

38 000 000

Developer

Darnu Group

Ligreta

Certificate

-

Apartment information

Sales
Available: 130 (73%) Reserved: 8 (5%)Sold: 39 (22%)
Quantity

177

Apartment sizes

37 - 125 m2

Price per square

3 440 - 6 281 €

Territory

Area size

1.9020 ha

Area density

30 %

Area intensity

0.67

Building footprint

5 672,39 m2

Amount of greenery

53.9 %

Technical parameters

Volume

Gross size

22 477,59 m2

Overground size

Underground size

Useful area

Commercial premises

0 m2

Floors

4

Height

15.94 m

Energy class

A++

Underground floors

1

Transport

269

0

96

Related companies

Advertisement
Užupio personos
Užupio personos
Gyvenkite Užupyje
Nuolaidos butams Užupyje iki 27 000 €! Pasinaudokite išskirtiniu pasiūlymu, nes progų apsigyventi pastatytame projekte liko mažiau nei 20.

Location   Embed

Undergoing New construction
Begin

2025 Q4

End

2027 Q2

Stages
Project ID