www.citify.eu
Statement date: 2026-05-03 00:45:53
Updated: 2026-03-11

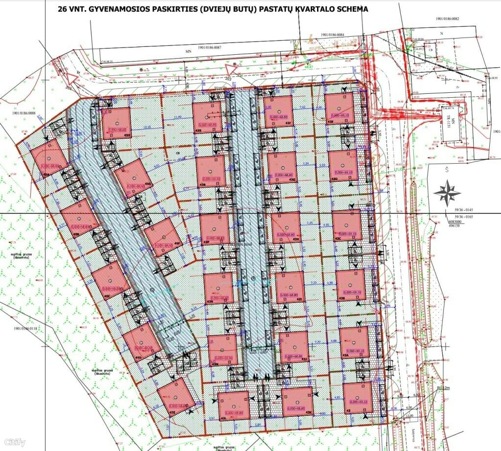
Šaldytuvų g. kvartalas

Šaldytuvų g. 43, 43A, 43B, 43C, 43D, 43E, 43F, 43G, 43H, 43I, 43J, 43K, 43L, 43M, 43N, 43P, 43R, 43S, 45A, 45B, 45C, 45D, 45E, 45F, 45G, 45H, Šančiai, Kaunas

Row housing

-

Developer

Vilenova

Certificate

-

Houses information

Sales
We don't have this data
Quantity

26

Houses sizes

55.85 m2

Price per square

- €

Territory

Area size

1.1633 ha

Area density

30 %

Area intensity

-

Building footprint

0,00 m2

Amount of greenery

- %

Technical parameters

Volume

Gross size

4 186,26 m2

Overground size

Underground size

Useful area

Commercial premises

0 m2

Floors

2

Height

7.54 m

Energy class

A+

Underground floors

0

Transport

104

0

0

Latest viewing

Project proposals
Status

Documents
These are project proposals submitted for public viewing

View the document

Info source

Open


Related companies

Advertisement
Metų laikai
Metų laikai
4 etapas jau čia!
Dar 187 butai pirkėjų pamėgtame projekte „Metų laikai“. Prasidėjo paskutinio, 4 etapo pardavimai – išsirinkite geriausią variantą jau dabar.

Location   Embed

Undergoing New construction
Begin

2025 Q3

End

-

Stages
Project ID