www.citify.eu
Statement date: 2026-05-05 11:49:27
Updated: 2022-03-18

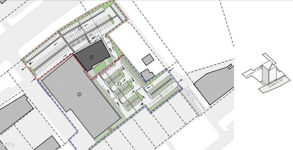
Savanorių pr. 406A

Savanorių pr. 406A, Dainava, Kaunas

Office center

-

Developer

Kauno saulėtekis

Certificate

-

Territory

Area size

0.5045 ha

Area density

17.95 %

Area intensity

Building footprint

3 734,00 m2

Amount of greenery

10 %

Technical parameters

Volume

Gross size

7 500,00 m2

Overground size

Underground size

Useful area

Area for rent

Floors

13

Height

49.6 m

Floor size

Office class

-

Energy class

A++

Underground floors

0

Transport

269

0

0

Latest viewing

Project proposals
Status

2021-05-27 15:30
Transliacija internetu: global.gotomeeting.com/join/426231461
Documents
These are project proposals submitted for public viewing

View the document

Info source

Open


Related companies

Advertisement
Užupio personos
Užupio personos
Gyvenkite Užupyje
Nuolaidos butams Užupyje iki 27 000 €! Pasinaudokite išskirtiniu pasiūlymu, nes progų apsigyventi pastatytame projekte liko mažiau nei 20.

Location   Embed

Planned New construction
Begin

-

End

-

Stages
Project ID