Citify
www.citify.eu
Statement date: 2026-05-06 04:31:36
Updated: 2025-08-14
Statement date: 2026-05-06 04:31:36
Updated: 2025-08-14
Parameters
Public presentation1
Related companies3
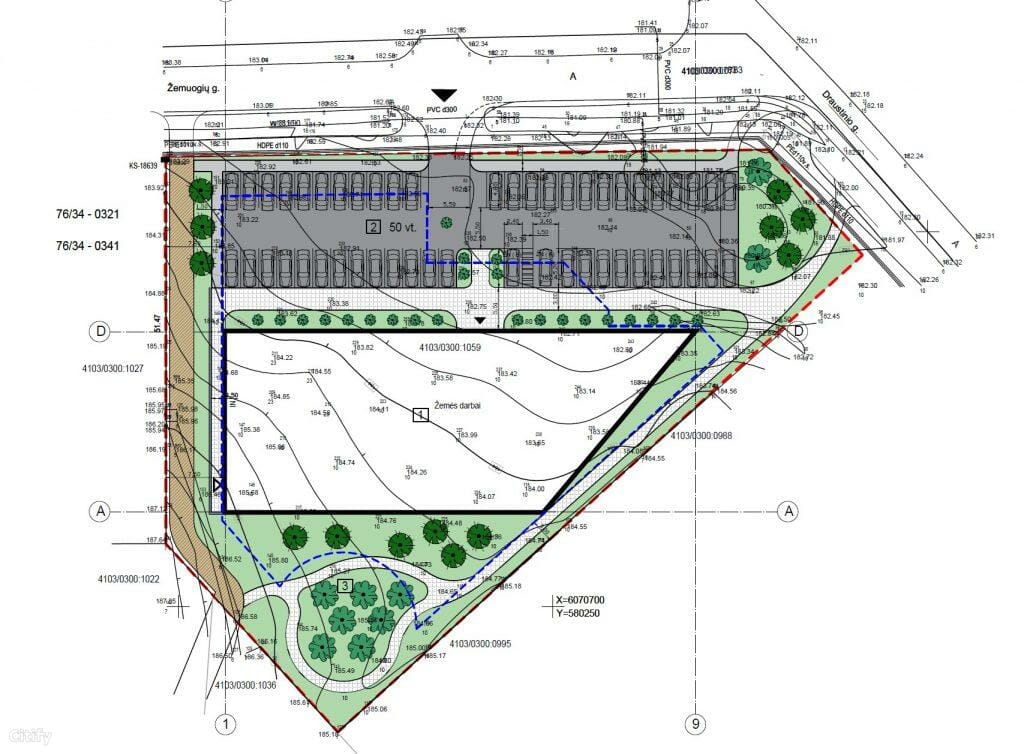
Territory
Area size
0.4579 ha
Area density
40.4 %
Area intensity
0.2871
Building footprint
1 315,00 m2
Amount of greenery
29 %
Technical parameters
Transport
Latest viewing
Project proposals
Documents
These are project proposals submitted for public viewing
These are project proposals submitted for public viewing








