www.citify.eu
Statement date: 2026-04-30 20:52:20
Updated: 2026-04-24

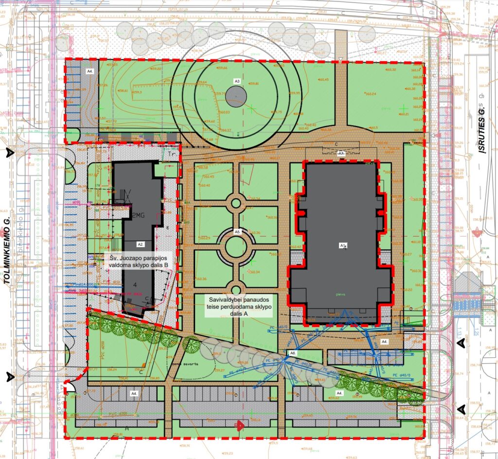
Šv. Juozapo bažnyčios skveras

Tolminkiemio g. 4, Pilaitė, Vilnius

Square

-

Financing

Vilniaus miesto savivaldybė

Territory

Area size

1.8276 ha

Latest viewing

Project proposals
Status

2020-12-21 17:00
Transliacija internetu: meet.google.com/nun-xaug-xje
Documents
These are project proposals submitted for public viewing

View the document

Info source

Open


Related companies

Public tender

Public tender

Advertisement
Metų laikai
Metų laikai
4 etapas jau čia!
Dar 187 butai pirkėjų pamėgtame projekte „Metų laikai“. Prasidėjo paskutinio, 4 etapo pardavimai – išsirinkite geriausią variantą jau dabar.

Location   Embed

Planned New construction
Begin

2026

End

2027 Q4

Stages
Project ID