www.citify.eu
Statement date: 2026-05-05 21:10:07
Updated: 2025-08-14

Tech Zity Lilium 3 etapas

Panerių g. 43, Naujamiestis, Vilnius

Hotel • Office center

-

Developer

Project Lilium

Certificate

-

Territory

Area size

- ha

Area density

45 %

Area intensity

1.31

Building footprint

0,00 m2

Amount of greenery

20 %

Technical parameters

Volume

Gross size

24 399,76 m2

Overground size

Underground size

Useful area

Area for rent

Floors

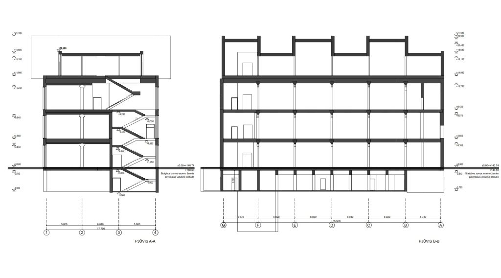
5

Height

24.23 m

Floor size

Office class

-

Energy class

A+

Underground floors

3

Transport

276

55

0

Related companies

Advertisement
Užupio personos
Užupio personos
Gyvenkite Užupyje
Nuolaidos butams Užupyje iki 27 000 €! Pasinaudokite išskirtiniu pasiūlymu, nes progų apsigyventi pastatytame projekte liko mažiau nei 20.

Location   Embed

Planned New construction
Begin

2026

End

2027

Stages
Project ID