www.citify.eu
Statement date: 2026-05-07 12:22:03
Updated: 2023-10-23

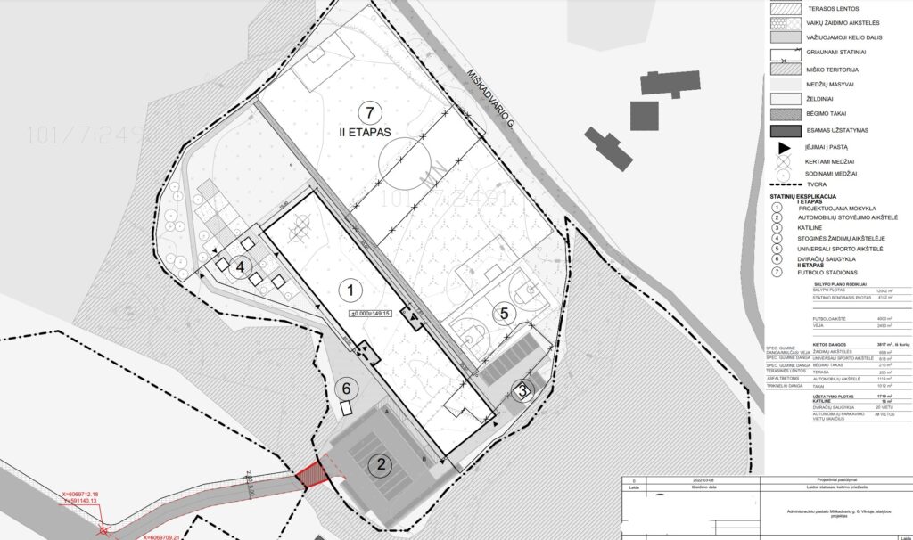
The British School of Vilnius Miškadvario g.

Miškadvario g. 6, Antakalnis, Vilnius

Primary and secondary education

6 000 000

Financing

Baltcap Infrastructure Fund

Territory

Area size

1.2042 ha

Area density

17 %

Area intensity

0.37

Building footprint

0,00 m2

Amount of greenery

20.7 %

Technical parameters

Volume

Gross size

4 142,00 m2

Overground size

Underground size

Useful area

Floors

4

Height

16 m

Energy class

A++

Underground floors

1

Transport

39

0

20

Latest viewing

Project proposals
Status

2022-04-20 17:00
Documents
These are project proposals submitted for public viewing

View the document

Info source

Open


Related companies

Advertisement
Užupio personos
Užupio personos
Gyvenkite Užupyje
Nuolaidos butams Užupyje iki 27 000 €! Pasinaudokite išskirtiniu pasiūlymu, nes progų apsigyventi pastatytame projekte liko mažiau nei 20.

Location   Embed

Finished New construction
Begin

2022 Q4

End

2023 Q4

Stages
Project ID