www.citify.eu
Statement date: 2026-05-01 14:46:10
Updated: 2025-08-15

Vytauto g. 15

Vytauto g. 15, Žvėrynas, Vilnius

Multi apartment • Office center

30 000 000

Developer

Wealthgrow

Certificate

-

Apartment information

Sales
We don't have this data
Quantity

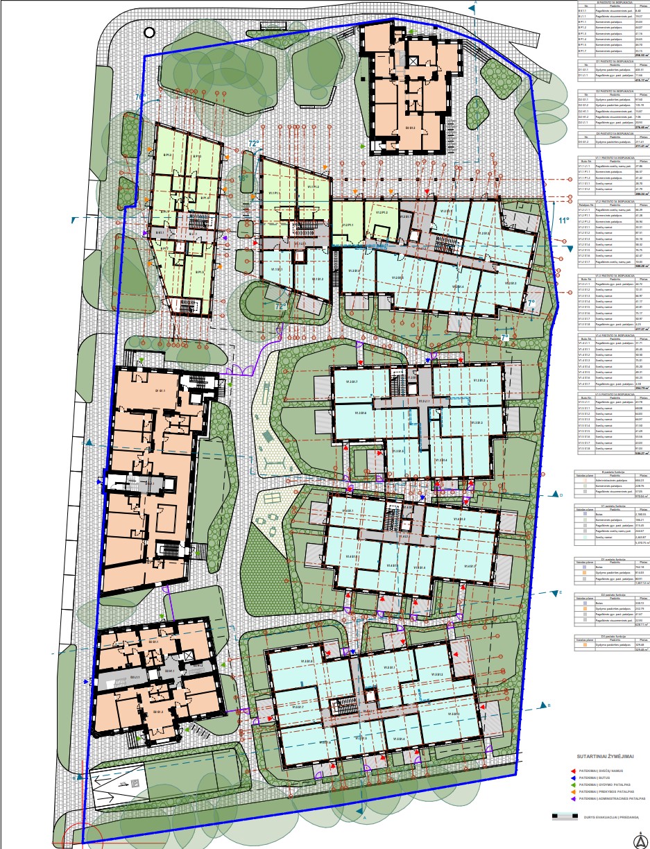
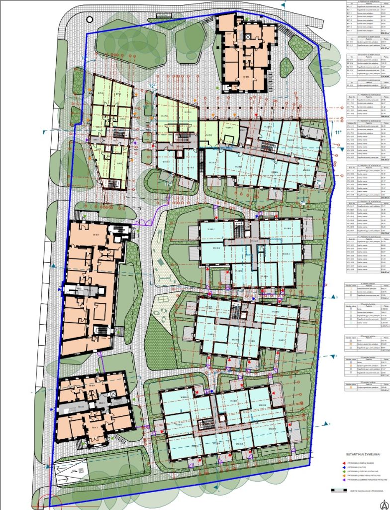
98

Apartment sizes

63 - 129 m2

Price per square

- €

Territory

Area size

0.9832 ha

Area density

44 %

Area intensity

0.91

Building footprint

4 203,00 m2

Amount of greenery

20 %

Technical parameters

Volume

Gross size

17 859,00 m2

Overground size

Underground size

Useful area

Commercial premises

873.66 m2

Floors

4

Height

19.02 m

Energy class

-

Underground floors

2

Transport

175

18

17

Latest viewing

Project proposals
Status

2025-09-03 17:00
Vilniaus m. savivaldybės patalpose, Tarybos posėdžių salėje
Documents
These are project proposals submitted for public viewing

View the document View the document View the document View the document View the document

Info source

Open


Previous viewings

Related companies

Advertisement
Metų laikai
Metų laikai
4 etapas jau čia!
Dar 187 butai pirkėjų pamėgtame projekte „Metų laikai“. Prasidėjo paskutinio, 4 etapo pardavimai – išsirinkite geriausią variantą jau dabar.

Location   Embed

Planned Reconstruction
Begin

-

End

-

Stages
Project ID