Citify
www.citify.eu
Statement date: 2026-05-06 06:05:41
Updated: 2026-01-26
Statement date: 2026-05-06 06:05:41
Updated: 2026-01-26
Parameters
Public presentation2
Related companies4
Articles3
Tenders2
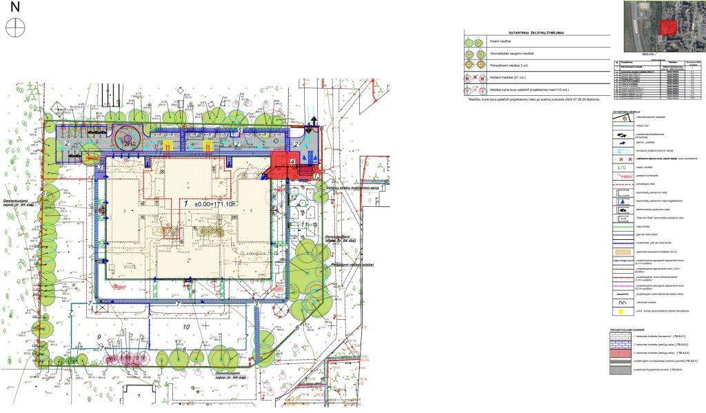
Territory
Area size
1.0512 ha
Area density
30.44 %
Area intensity
0.44
Building footprint
0,00 m2
Amount of greenery
- %
Technical parameters
Transport
Latest viewing
Project proposals
Documents
These are project proposals submitted for public viewing
These are project proposals submitted for public viewing
Info source
Previous viewings
Project proposals
Documents
These are project proposals submitted for public viewing
These are project proposals submitted for public viewing
Info source
Related companies
Media articles
| Bus rekonstruotos keturios Vilniaus mokyklos: pasirašytos projektavimo sutartys 2024-01-22 · structum.lt |
| Vilniuje bus atnaujintos keturios mokyklos: pristatoma 13 pasiūlymų 2023-10-06 · vz.lt |
| Vilniuje bus atnaujinamos keturios mokyklos: architektai kviečiami teikti pasiūlymus 2023-06-28 · vilnius.lt |
Public tender
New
Date
2025-10-17
Opening of offers
2025-10-31
Number
5019776




