www.citify.eu
Statement date: 2026-05-04 11:27:58
Updated: 2025-08-14

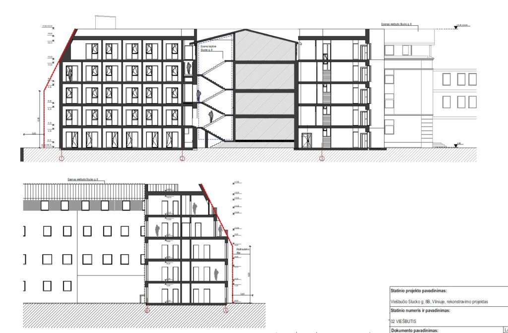
Youston co-living (Slucko g. 8) 2 etapas

Slucko g. 8, Šnipiškės, Vilnius

Co-living

-

Developer

Kaita Group

Certificate

-

Premises information

Sales
We don't have this data
Quantity

48

Premises sizes

- m2

Price per square

- €

Territory

Area size

0.3830 ha

Area density

46 %

Area intensity

1.34

Building footprint

0,00 m2

Amount of greenery

10 %

Technical parameters

Volume

Gross size

1 512,83 m2

Overground size

Underground size

Useful area

Commercial premises

- m2

Floors

5

Height

18 m

Energy class

A

Underground floors

0

Transport

11

0

5

Latest viewing

Related companies

Advertisement
Užupio personos
Užupio personos
Gyvenkite Užupyje
Nuolaidos butams Užupyje iki 27 000 €! Pasinaudokite išskirtiniu pasiūlymu, nes progų apsigyventi pastatytame projekte liko mažiau nei 20.

Location   Embed

Planned Reconstruction
Begin

-

End

-

Stages
Project ID