www.citify.eu
Statement date: 2026-05-04 06:09:19
Updated: 2025-10-08

Zarasų 15

Zarasų g. 15, Senamiestis, Vilnius

Multi apartment

1 700 000

Developer

Zarasų projektas

Certificate

-

Apartment information

Sales
We don't have this data
Quantity

22

Apartment sizes

36 - 96 m2

Price per square

1 590 - 1 900 €

Territory

Area size

0.08 ha

Area density

40 %

Area intensity

1,2

Building footprint

0,00 m2

Amount of greenery

- %

Technical parameters

Volume

Gross size

1 942,40 m2

Overground size

Underground size

Useful area

Commercial premises

0 m2

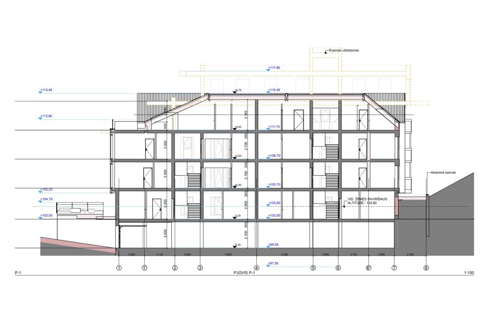
Floors

3

Height

11.7 m

Energy class

A+

Underground floors

1

Transport

20

0

0

Latest viewing

Project proposals
Status

2024-10-22 18:00
Vilnius, Odminių g. 3 (Vilniaus Senamiesčio seniūnija)
Documents
These are project proposals submitted for public viewing

View the document View the document

Info source

Open


Related companies

Advertisement
Užupio personos
Užupio personos
Gyvenkite Užupyje
Nuolaidos butams Užupyje iki 27 000 €! Pasinaudokite išskirtiniu pasiūlymu, nes progų apsigyventi pastatytame projekte liko mažiau nei 20.

Location   Embed

Suspended New construction
Begin

2014 Q1

End

-

Stages
Project ID