Šaltinių namai | Attico 2 etapas
Aguonų g. 8
Begin
2023 Q3
End
2025 Q3
Type
Multi apartment • Other commercial
Price per square
5 200 - 6 200 €
54
39 - 186 m2
6 300 - 9 804 €
+370 659 37360
0.2878 ha
230 %
0.6
2 327,00 m2
30 %
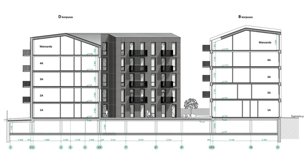
| Po ilgų diskusijų pagaliau prasideda „Žygimantų 12“ statybos: investicijos sieks 28 mln. eurų 2024-01-02 · madeinvilnius.lt |
| Statytojai pristatė visuomenei želdinių situaciją gyvenamojo namo statybų projekte Žygimantų g. 12A 2023-11-16 · vilnius.lt |
| „Rewo“ atnaujino sostinės Žygimantų g. daugiabučio projektą 2022-10-03 · vz.lt |
| Ginčas dėl „Rewo“ daugiabučio statybų sostinės Žygimantų g. išspręstas taikiai 2021-08-19 · vz.lt |
| Aistros Vilniaus senamiestyje: verslininkus kaltina nugriovus vertingus pastatus, žalą vertina 351 tūkst. eurų 2021-02-09 · alfa.lt |
| Prie Kultūros paveldo departamento vyks piketas dėl Žygimantų gatvėje planuojamų statybų 2020-01-27 · delfi.lt |
| Visuomenininkai piketavo dėl statybų Žygimantų gatvėje: statinys užgožtų panoramą 2020-01-27 · 15min.lt |
2023 Q4
2025 Q3
Aguonų g. 8
2023 Q3
2025 Q3
Multi apartment • Other commercial
5 200 - 6 200 €
Malūnų g. 4
2015 Q2
2016 Q2
Multi apartment
3 128 - 4 081 €
Mindaugo g. 12A
2019 Q2
2022 Q3
Multi apartment
6 000 - 11 700 €
Pylimo g. 12
2019 Q1
2020 Q3
Row housing
Aukštaičių g. 4, 8
2017 Q4
2019 Q3
Multi apartment
Krivūlės g. 6
2019 Q4
2021 Q3
Multi apartment
Subačiaus g. 20
2017
2021 Q3
Multi apartment
3 000 - 7 000 €
Bokšto g. 14A
2015 Q3
2017 Q1
Multi apartment
2 709 - 3 061 €