www.citify.eu
Avalduse kuupäev: 2026-05-03 19:39:21
Uuendatud: 2025-08-19

Savanorių pr. 124

Savanorių pr. 124, Vilkpėdė, Vilnius

Büroohoone

-

Arendaja

Paroc

Sertifikaat

-

Territoorium

Ala suurus

- ha

Ala tihedus

42 %

Ala intensiivsus

0.6

Maapealne ehitusalune pind

0,00 m2

Haljastus

- %

Tehnilised parameetrid

Maht

Brutopind

3 263,16 m2

Maapealne brutopind

Maa-alune brutopind

Netopind

Üüritav ala

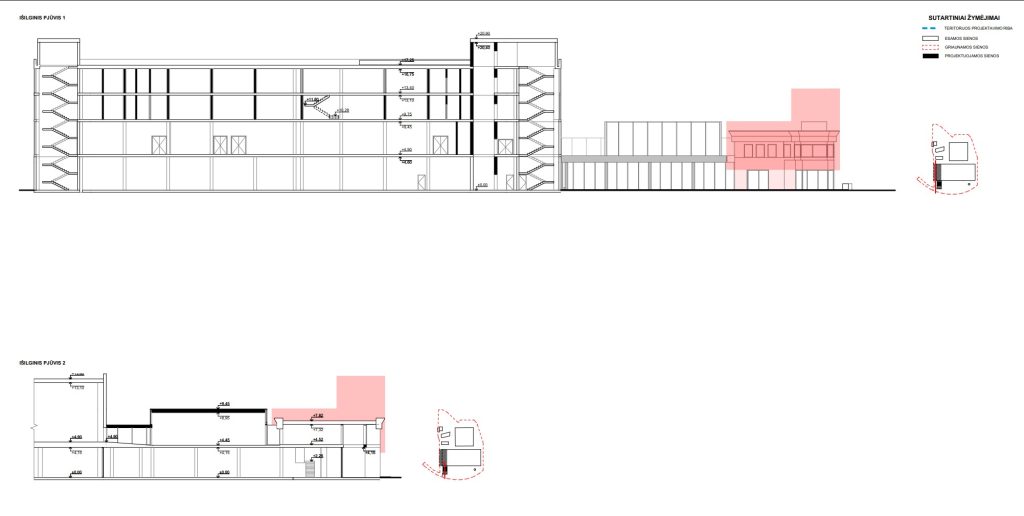
Maapealsed korrused

3

Kõrgus

21 m

Korruse pindala

Äripinna klass

-

Energiaklass

-

Maa-alused korrused

0

Parkimine

5

0

0

Avalik väljapanek

Projektiettepanekud
Staatus

2024-10-24 15:00
Dokumendid
Need on projektide ettepanekud, mis on esitatud avalikule väljapanekule.

Vaata dokumenti Vaata dokumenti

Infoallikas

Ava


Seotud ettevõtted

Reklaam
Metų laikai
Metų laikai
4 etapas jau čia!
Dar 187 butai pirkėjų pamėgtame projekte „Metų laikai“. Prasidėjo paskutinio, 4 etapo pardavimai – išsirinkite geriausią variantą jau dabar.

Asukoht   Manusta

Planeeritud Rekonstrueerimine
Algus

-

Lõpp

-

Etapid
Projekti ID