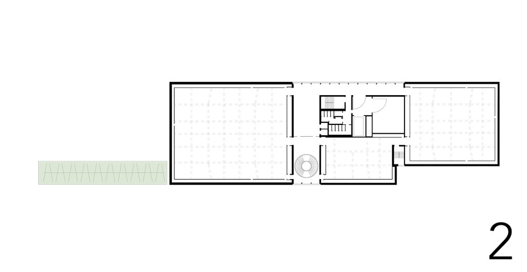
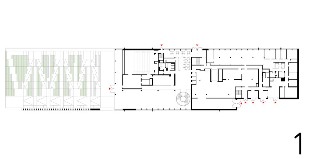
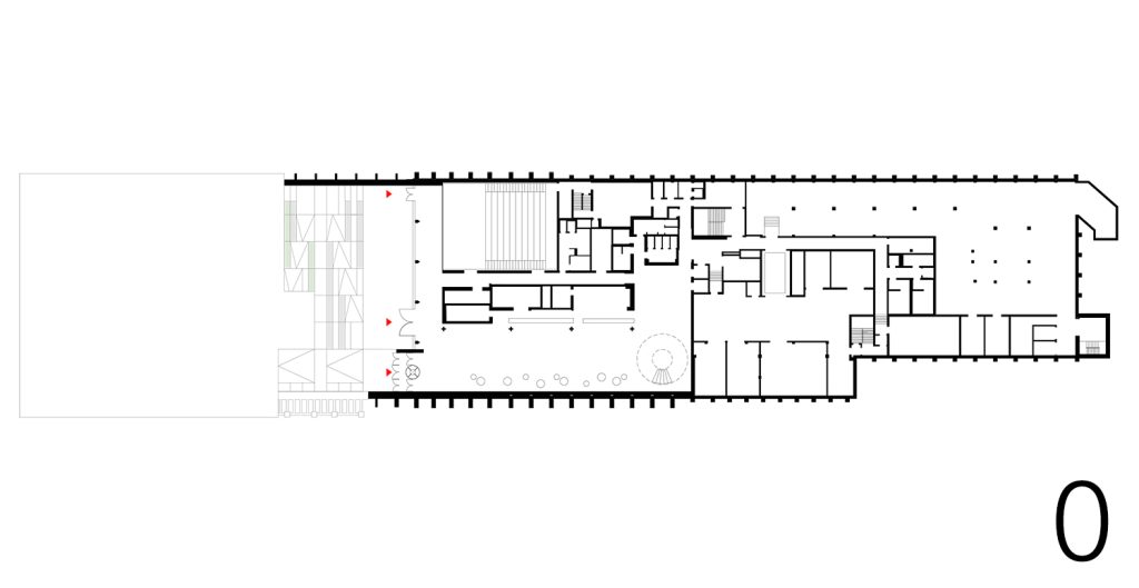
Latvijas Laikmetīgās mākslas muzejs
Mihaila Tāla iela 4
Begin
2025
End
2032
Type
Museum
Borisa un Ināras Teterevu fonds, ABLV Bank
0.63 ha
- %
-
4 540,00 m2
- %
| Latvijas Laikmetīgās mākslas muzeju piedāvā veidot kā LNMM struktūrvienību 2024-07-29 · db.lv |
| Laikmetīgās mākslas muzeja projektu iepauzē 2022-09-14 · db.lv |
| Kultūras ministrija un Rīgas dome veidos darba grupu Laikmetīgās mākslas muzeja virzībai 2021-02-16 · lsm.lv |
| Projekts gatavs, atliek tikai uzcelt – cik ilgi Latvija gaidīs Laikmetīgās mākslas muzeju? Diskusija 2021-02-15 · lsm.lv |
| Ieskats topošajā Latvijas Laikmetīgās mākslas muzejā 2021-02-05 · fold.lv |
| Gatavo Laikmetīgās mākslas muzeja projektu grib dāvināt valstij 2020-06-02 · lsm.lv |
| Latvijas Laikmetīgās mākslas muzeju cels britu "Adjaye Associates" sadarbībā ar "AB3D" 2016-06-16 · satori.lv |
| Laikmetīgās mākslas muzeja metu konkursā piedalīsies septiņas starptautiskas arhitektu komandas 2016-01-27 · lsm.lv |