www.citify.eu
Statement date: 2026-05-02 10:15:48
Updated: 2024-05-07

Naujasis Žvėrynas

Sėlių g. 2, Žvėrynas, Vilnius

Office center

-

Developer

Reineda

Versina

Certificate

-

Territory

Area size

0.1944 ha

Area density

44 %

Area intensity

0.8

Building footprint

0,00 m2

Amount of greenery

38 %

Technical parameters

Volume

Gross size

3 006,00 m2

Overground size

Underground size

Useful area

Area for rent

Floors

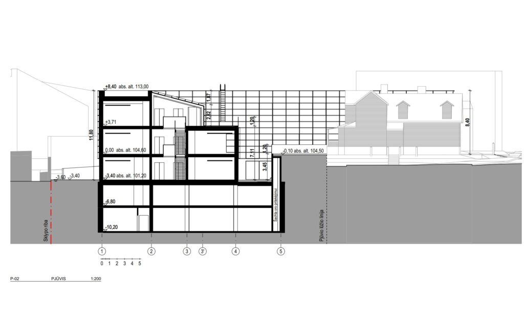
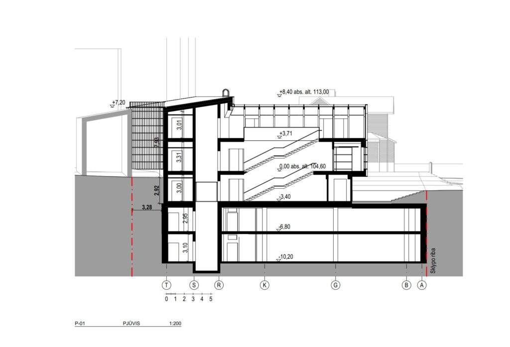
3

Height

9.2 m

Floor size

Office class

-

Energy class

A+

Underground floors

2

Transport

42

12

8

Latest viewing

Project proposals
Status

Documents
These are project proposals submitted for public viewing

View the document

Info source

Open


Related companies

Advertisement
Metų laikai
Metų laikai
4 etapas jau čia!
Dar 187 butai pirkėjų pamėgtame projekte „Metų laikai“. Prasidėjo paskutinio, 4 etapo pardavimai – išsirinkite geriausią variantą jau dabar.

Location   Embed

Planned Reconstruction
Begin

-

End

2025 Q4

Stages
Project ID