www.citify.eu
Statement date: 2025-11-17 02:15:36
Updated: 2025-10-21

Savanorių pr. 225

Savanorių pr. 225, Žaliakalnis, Kaunas

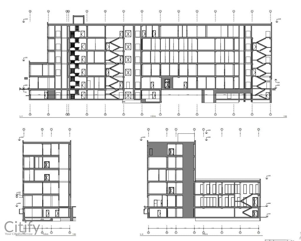
Health center

-

Certificate

-

Territory

Area size

0.5063 ha

Area density

76 %

Area intensity

1.04

Building footprint

0,00 m2

Amount of greenery

14 %

Technical parameters

Volume

Gross size

6 172,00 m2

Overground size

Underground size

Useful area

Area for rent

Floors

5

Height

22 m

Floor size

Office class

-

Energy class

A

Underground floors

1

Transport

107

0

0

Latest viewing

Project proposals
Status

2020-09-03 17:00
Kauno miesto savivaldybė, 108 kab., Laisvės al. 96, Kaunas
Documents
These are project proposals submitted for public viewing

View the document

Info source

Open


Related companies

Advertisement
U128 Butai Žvėryne
U128 Butai Žvėryne
Butai šiaurinėje Žvėryno dalyje šalia Panoramos. Aukštos lubos ir erdvūs balkonai. Statybų pabaiga jau artėja, registruokis apžiūrai.

Location   Embed

Undergoing Reconstruction
Begin

2021 Q2

End

2025 Q4

Stages
Project ID