www.citify.eu
Statement date: 2026-01-20 17:51:26
Updated: 2020-11-26

Visų Šventųjų g. 9

Visų Šventųjų g. 9, Senamiestis, Vilnius

Multi apartment

-

Developer

Private person

Certificate

-

Apartment information

Sales
We don't have this data
Quantity

-

Apartment sizes

- m2

Price per square

- €

Territory

Area size

0.0601 ha

Area density

82.2 %

Area intensity

Building footprint

0,00 m2

Amount of greenery

- %

Technical parameters

Volume

Gross size

1 128,07 m2

Overground size

Underground size

Useful area

Commercial premises

257.01 m2

Floors

2

Height

0 m

Energy class

-

Underground floors

1

Transport

23

0

0

Latest viewing

Project proposals
Status

2020-02-04 17:00
Konstitucijos pr. 7, UAB "Fegda", Vilnius
Documents
These are project proposals submitted for public viewing

View the document

Info source

Open


Related companies

Advertisement
U128
U128
Butai Žvėryne
Butai šiaurinėje Žvėryno dalyje šalia Panoramos. Aukštos lubos ir erdvūs balkonai. Statybų pabaiga jau artėja, registruokis apžiūrai.

Location   Embed

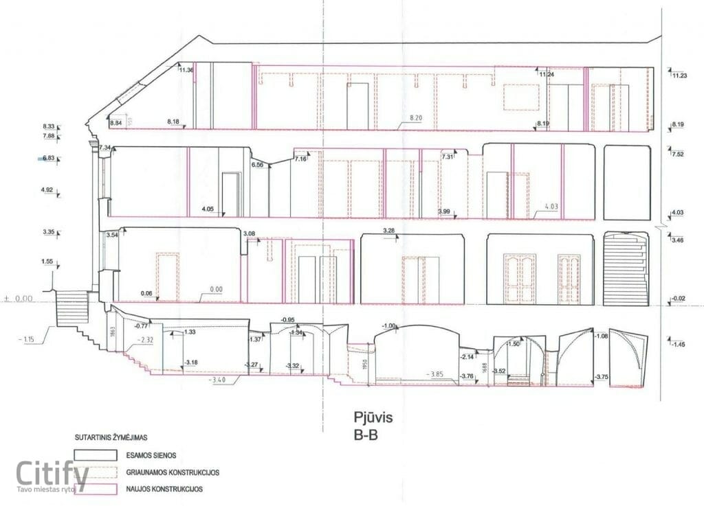
Planned Reconstruction
Begin

-

End

-

Stages
Project ID