www.citify.eu
Išrašo laikas: 2026-04-29 23:50:58
Atnaujinta: 2025-09-13

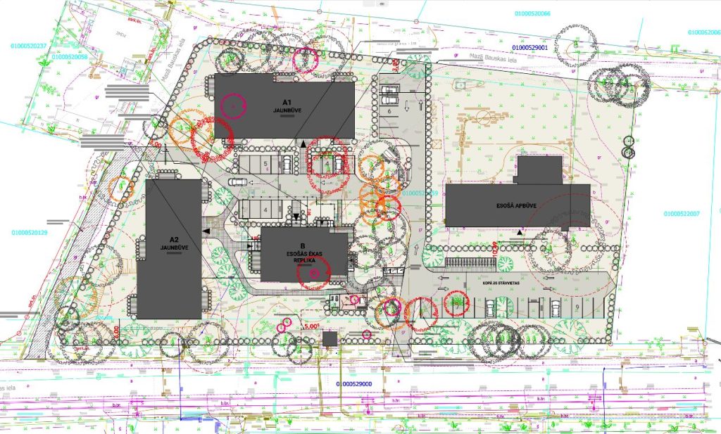
Bauskas iela 134 - "A2" ēka

Bauskas iela 134, Bišumuiža, Rīga

Daugiabutis

-

Statytojas

Bauskas HRE

Sertifikatas

-

Butų informacija

Pardavimai
Neturime duomenų
Kiekis

-

Butų plotai

- m2

Kvadrato kaina

- €

Teritorija

Teritorijos dydis

0.7688 ha

Užstatymo tankumas

- %

Užstatymo intensyvumas

-

Užstatymo plotas

0,00 m2

Želdynų kiekis

- %

Techniniai parametrai

Tūris

Bendras plotas

0,00 m2

Antžeminis plotas

Požeminis plotas

Naudingas plotas

Komercinės patalpos

- m2

Aukštų skaičius

3

Aukštis

0 m

Energetinė klasė

-

Požeminiai aukštai

0

Transportas

-

0

0

Nėra svarstymų

Susijusios įmonės

Reklama
Get full access with Citify Pro membership
From 30 Eur / month
Find business opportunities with full data access and functionality.

Vieta   Įterpti

Planuojamas Nauja statyba
Pradžia

-

Pabaiga

-

Etapai
Projekto numeris