www.citify.eu
Išrašo laikas: 2026-04-29 20:53:54
Atnaujinta: 2026-03-30

Gardenes iela 2 - "B" ēka

Gardenes iela 2, Āgenskalns, Rīga

Daugiabutis

-

Statytojas

FIBI AMG

Sertifikatas

-

Butų informacija

Pardavimai
Neturime duomenų
Kiekis

46

Butų plotai

- m2

Kvadrato kaina

- €

Teritorija

Teritorijos dydis

- ha

Užstatymo tankumas

29.7 %

Užstatymo intensyvumas

1.6

Užstatymo plotas

555,00 m2

Želdynų kiekis

40 %

Techniniai parametrai

Tūris

Bendras plotas

3 598,60 m2

Antžeminis plotas

Požeminis plotas

Naudingas plotas

Komercinės patalpos

- m2

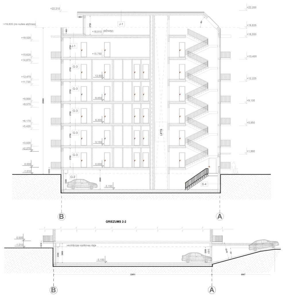
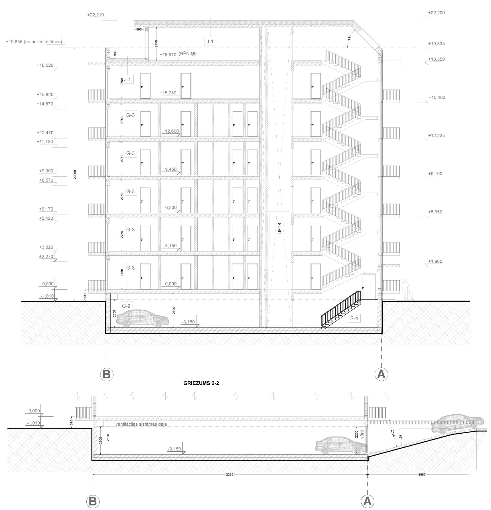
Aukštų skaičius

6

Aukštis

22.2 m

Energetinė klasė

-

Požeminiai aukštai

1

Transportas

34

0

0

Nėra svarstymų

Susijusios įmonės

Reklama
Get full access with Citify Pro membership
From 30 Eur / month
Find business opportunities with full data access and functionality.

Vieta   Įterpti

Planuojamas Nauja statyba
Pradžia

-

Pabaiga

-

Etapai
Projekto numeris