www.citify.eu
Išrašo laikas: 2026-04-29 15:18:48
Atnaujinta: 2021-03-22

Kreivasis skg. 7

Kreivasis skg. 7, Senamiestis, Vilnius

Daugiabutis

-

Statytojas

Mrs

Sertifikatas

-

Butų informacija

Pardavimai
Neturime duomenų
Kiekis

24

Butų plotai

- m2

Kvadrato kaina

- €

Teritorija

Teritorijos dydis

0.1870 ha

Užstatymo tankumas

43 %

Užstatymo intensyvumas

Užstatymo plotas

0,00 m2

Želdynų kiekis

36.56 %

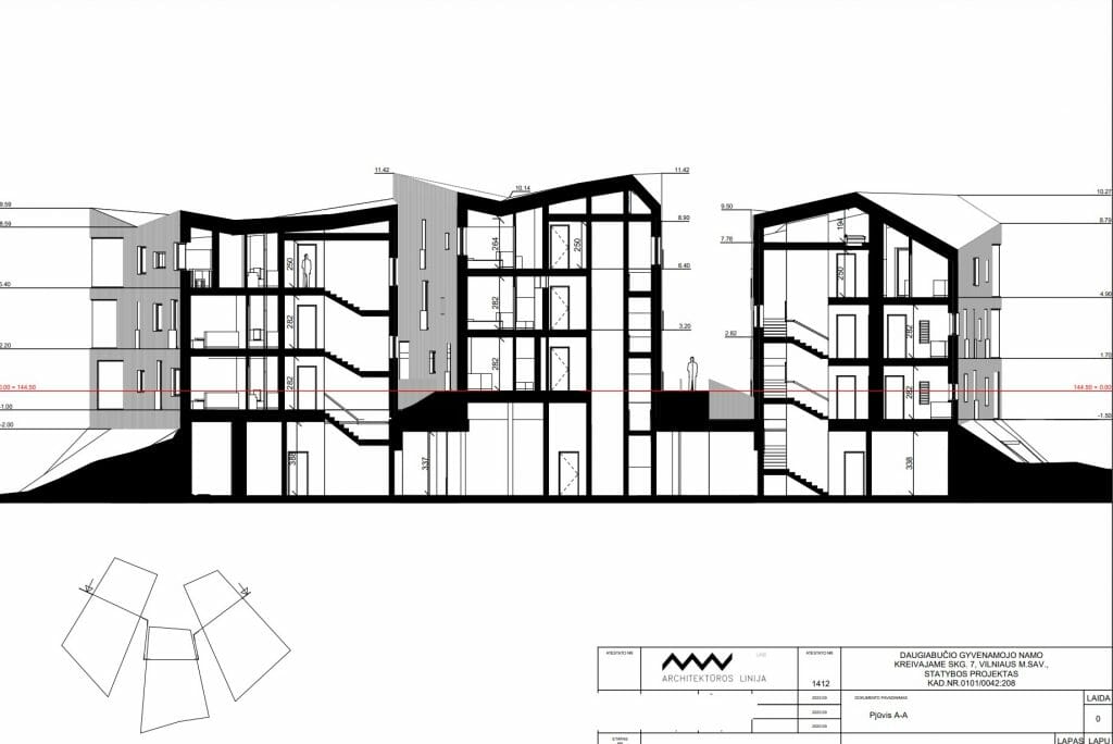
Techniniai parametrai

Tūris

Bendras plotas

2 926,21 m2

Antžeminis plotas

Požeminis plotas

Naudingas plotas

Komercinės patalpos

0 m2

Aukštų skaičius

3

Aukštis

22 m

Energetinė klasė

A+

Požeminiai aukštai

1

Transportas

18

0

0

Paskutinis svarstymas

Projektiniai pasiūlymai
Statusas

2020-11-27 17:00
Dokumentai
Tai yra visuomenės aptarimui pateikti pasiūlymai ir gali skirtis nuo galutinių savivaldybės patvirtintų sprendinių

Peržiūrėti dokumentą

Informacijos šaltinis

Atidaryti


Susijusios įmonės

Reklama
Metų laikai
Metų laikai
4 etapas jau čia!
Dar 187 butai pirkėjų pamėgtame projekte „Metų laikai“. Prasidėjo paskutinio, 4 etapo pardavimai – išsirinkite geriausią variantą jau dabar.

Vieta   Įterpti

Planuojamas Nauja statyba
Pradžia

-

Pabaiga

-

Etapai
Projekto numeris