Citify
www.citify.eu
Išrašo laikas: 2026-04-30 19:32:48
Atnaujinta: 2026-04-30
Išrašo laikas: 2026-04-30 19:32:48
Atnaujinta: 2026-04-30
Parametrai
Viešinimai
Susijusios įmonės6
Straipsniai2
Teritorija
Teritorijos dydis
0.5929 ha
Užstatymo tankumas
- %
Užstatymo intensyvumas
-
Užstatymo plotas
0,00 m2
Želdynų kiekis
- %
Techniniai parametrai
Transportas
Nėra svarstymų
Susijusios įmonės
Pranešimai žiniasklaidoje
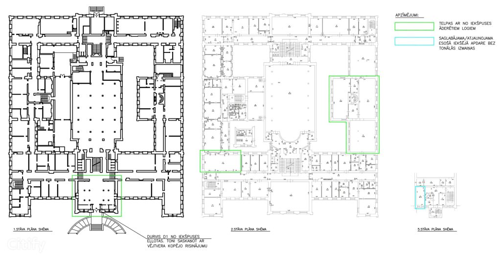
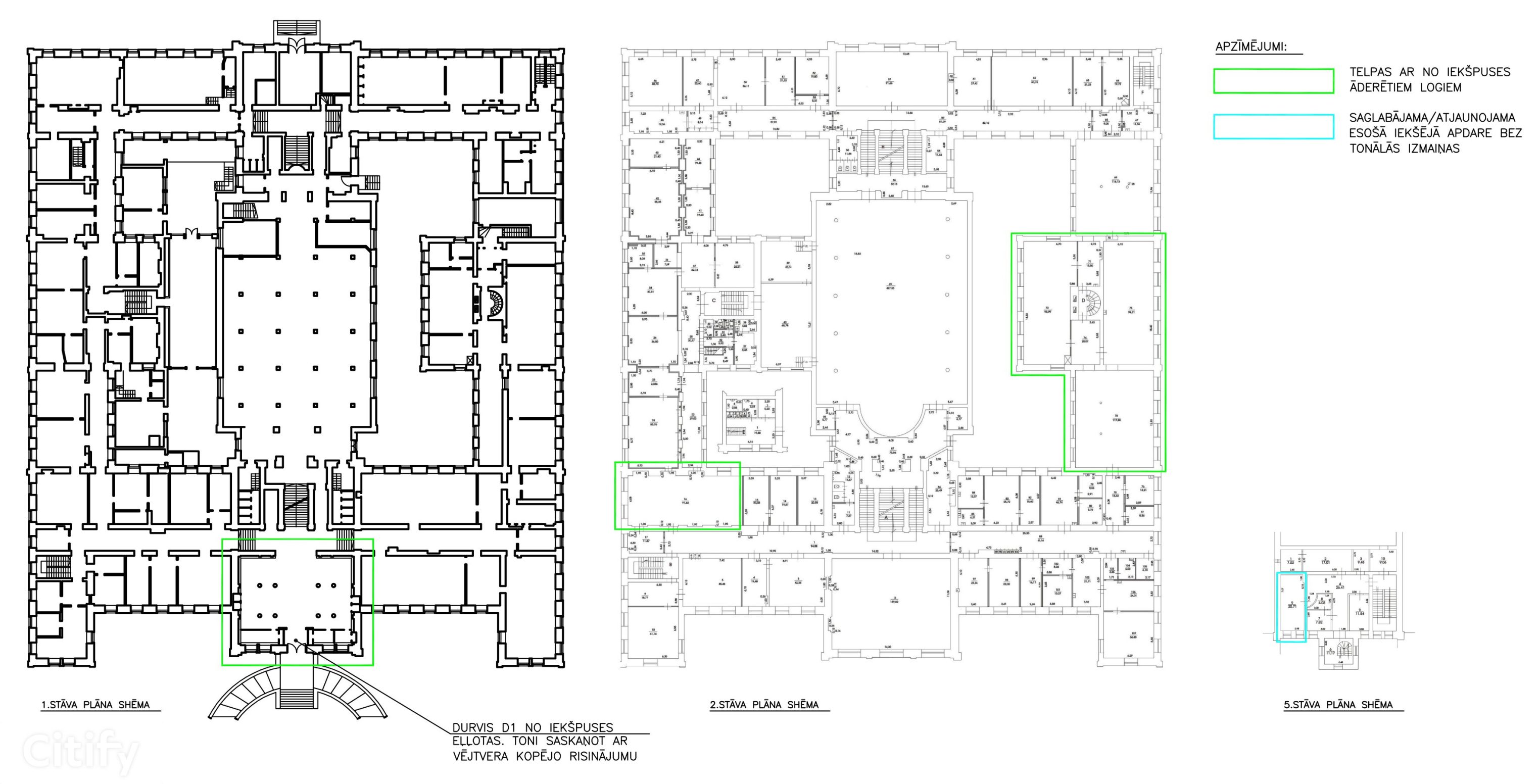
| 🪟 Turpinās Latvijas Universitātes galvenās ēkas Raiņa bulvārī 19 atjaunošanas darbi. 2026-04-30 · facebook.com |
| Par 4,8 miljoniem eiro atjaunos Latvijas Universitātes galveno ēku 2026-04-21 · db.lv |
Vieta
Įterpti
Atnaujinta: 2026-04-30
Statomas
Rekonstrukcija
Pradžia
2026 Q1
Pabaiga
2028 Q1







