www.citify.eu
Išrašo laikas: 2026-04-29 15:19:18
Atnaujinta: 2026-03-19

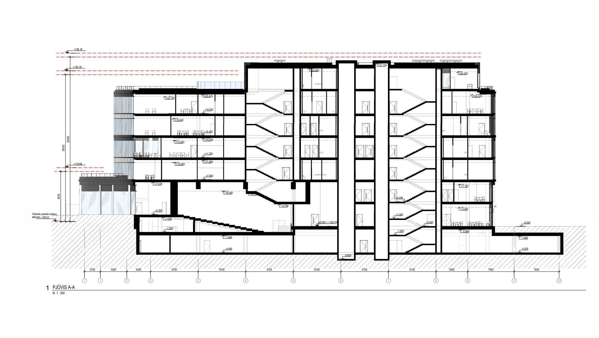
PC PANORAMA plėtra Stirnų g.

Saltoniškių g. 9, Žvėrynas, Vilnius

Kino teatras • Verslo centras

-

Sertifikatas

-

Teritorija

Teritorijos dydis

- ha

Užstatymo tankumas

65 %

Užstatymo intensyvumas

1.44

Užstatymo plotas

0,00 m2

Želdynų kiekis

20 %

Techniniai parametrai

Tūris

Bendras plotas

16 011,56 m2

Antžeminis plotas

Požeminis plotas

Naudingas plotas

Plotas nuomai

Aukštų skaičius

7

Aukštis

27.9 m

Aukšto plotas

Biurų klasė

-

Energetinė klasė

A++

Požeminiai aukštai

1

Transportas

60

16

0

Paskutinis svarstymas

Projektiniai pasiūlymai
Statusas

2026-04-07 18:00
Vilniaus miesto savivaldybė, salė Nr.: 215, 2-as aukštas
Dokumentai
Tai yra visuomenės aptarimui pateikti pasiūlymai ir gali skirtis nuo galutinių savivaldybės patvirtintų sprendinių

Peržiūrėti dokumentą

Informacijos šaltinis

Atidaryti


Susijusios įmonės

Reklama
Metų laikai
Metų laikai
4 etapas jau čia!
Dar 187 butai pirkėjų pamėgtame projekte „Metų laikai“. Prasidėjo paskutinio, 4 etapo pardavimai – išsirinkite geriausią variantą jau dabar.

Vieta   Įterpti

Planuojamas Nauja statyba
Pradžia

-

Pabaiga

2029 Q3

Etapai
Projekto numeris