www.citify.eu
Išrašo laikas: 2026-04-29 18:21:05
Atnaujinta: 2026-04-04

Sakai (Miško vilos) 3 etapas

K. Jelskio g. 26, Lazdynai, Vilnius

Daugiabutis

-

Statytojas

Darnu Group

Sertifikatas

-

Butų informacija

Pardavimai
Neturime duomenų
Kiekis

39

Butų plotai

36 - 117 m2

Kvadrato kaina

- €

Teritorija

Teritorijos dydis

0.4916 ha

Užstatymo tankumas

38 %

Užstatymo intensyvumas

0.6

Užstatymo plotas

1 865,00 m2

Želdynų kiekis

57 %

Techniniai parametrai

Tūris

Bendras plotas

4 529,37 m2

Antžeminis plotas

Požeminis plotas

Naudingas plotas

Komercinės patalpos

0 m2

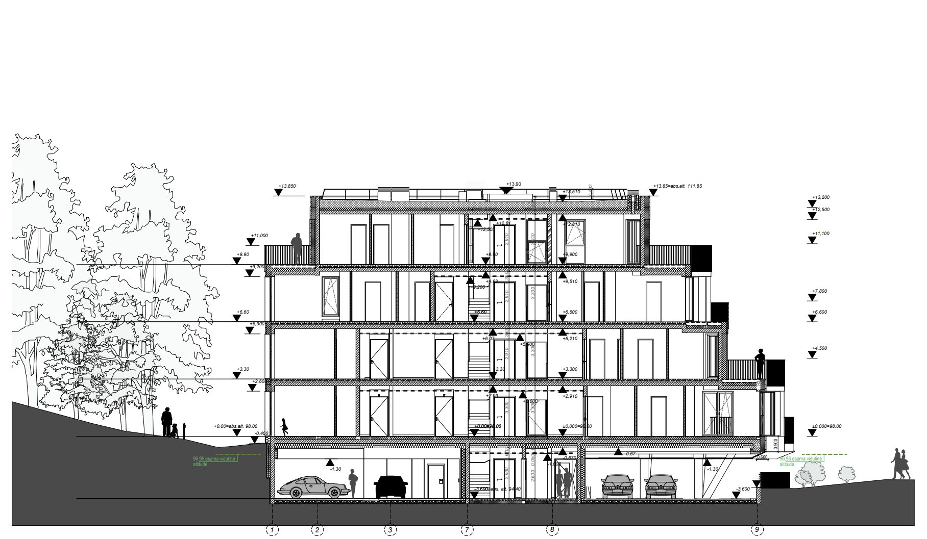
Aukštų skaičius

4

Aukštis

16 m

Energetinė klasė

A++

Požeminiai aukštai

1

Transportas

37

8

11

Paskutinis svarstymas

Projektiniai pasiūlymai
Statusas

Dokumentai
Tai yra visuomenės aptarimui pateikti pasiūlymai ir gali skirtis nuo galutinių savivaldybės patvirtintų sprendinių

Peržiūrėti dokumentą Peržiūrėti dokumentą Peržiūrėti dokumentą

Informacijos šaltinis

Atidaryti


Ankstesni svarstymai

Projektiniai pasiūlymai
Dokumentai
Tai yra visuomenės aptarimui pateikti pasiūlymai ir gali skirtis nuo galutinių savivaldybės patvirtintų sprendinių

Peržiūrėti dokumentą Peržiūrėti dokumentą Peržiūrėti dokumentą

Informacijos šaltinis

Atidaryti


Projektiniai pasiūlymai
Dokumentai
Tai yra visuomenės aptarimui pateikti pasiūlymai ir gali skirtis nuo galutinių savivaldybės patvirtintų sprendinių

Peržiūrėti dokumentą Peržiūrėti dokumentą

Informacijos šaltinis

Atidaryti


Susijusios įmonės

Reklama
Metų laikai
Metų laikai
4 etapas jau čia!
Dar 187 butai pirkėjų pamėgtame projekte „Metų laikai“. Prasidėjo paskutinio, 4 etapo pardavimai – išsirinkite geriausią variantą jau dabar.

Vieta   Įterpti

Planuojamas Nauja statyba
Pradžia

-

Pabaiga

-

Etapai
Projekto numeris