www.citify.eu
Išrašo laikas: 2026-04-29 19:12:15
Atnaujinta: 2025-08-19

Savanorių pr. 116

Savanorių pr. 116, Vilkpėdė, Vilnius

Verslo centras

-

Statytojas

Kronto

Rewo

Sertifikatas

-

Teritorija

Teritorijos dydis

0.2479 ha

Užstatymo tankumas

59 %

Užstatymo intensyvumas

2.01

Užstatymo plotas

1 464,27 m2

Želdynų kiekis

25 %

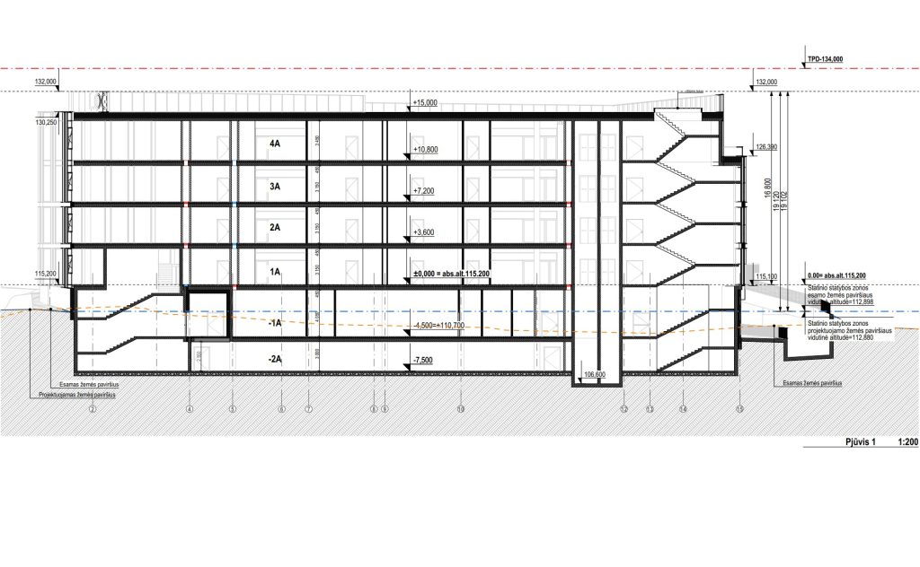
Techniniai parametrai

Tūris

Bendras plotas

7 036,78 m2

Antžeminis plotas

Požeminis plotas

Naudingas plotas

Plotas nuomai

Aukštų skaičius

4

Aukštis

19.10 m

Aukšto plotas

Biurų klasė

-

Energetinė klasė

A++

Požeminiai aukštai

0

Transportas

65

14

18

Paskutinis svarstymas

Projektiniai pasiūlymai
Statusas

2025-08-19 15:00
Dokumentai
Tai yra visuomenės aptarimui pateikti pasiūlymai ir gali skirtis nuo galutinių savivaldybės patvirtintų sprendinių

Peržiūrėti dokumentą Peržiūrėti dokumentą

Informacijos šaltinis

Atidaryti


Susijusios įmonės

Pranešimai žiniasklaidoje

„Rewo“ rengiasi statyti pirmąjį biurų projektą
2025-08-13  ·  vz.lt
Reklama
Metų laikai
Metų laikai
4 etapas jau čia!
Dar 187 butai pirkėjų pamėgtame projekte „Metų laikai“. Prasidėjo paskutinio, 4 etapo pardavimai – išsirinkite geriausią variantą jau dabar.

Vieta   Įterpti

Planuojamas Nauja statyba
Pradžia

2026 Q3

Pabaiga

-

Etapai
Projekto numeris