www.citify.eu
Išrašo laikas: 2026-05-02 21:22:32
Atnaujinta: 2026-01-16

Sutartinės 2 etapas

J. Basanavičiaus g. 28, Naujamiestis, Vilnius

Daugiabutis

40 000 000

Statytojas

YIT Lietuva

Sertifikatas

-

Butų informacija

Pardavimai
Neturime duomenų
Kiekis

64

Butų plotai

45 - 111 m2

Kvadrato kaina

5 326 - 7 525 €

Teritorija

Teritorijos dydis

1.1449 ha

Užstatymo tankumas

37.13 %

Užstatymo intensyvumas

1.24

Užstatymo plotas

2 831,37 m2

Želdynų kiekis

30 %

Techniniai parametrai

Tūris

Bendras plotas

17 548,40 m2

Antžeminis plotas

Požeminis plotas

Naudingas plotas

Komercinės patalpos

488.04 m2

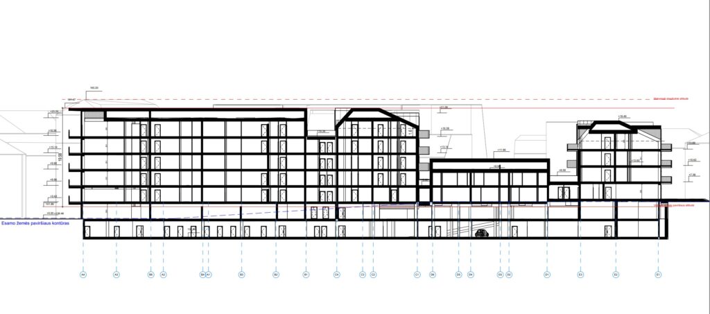
Aukštų skaičius

6

Aukštis

19.58 m

Energetinė klasė

A++

Požeminiai aukštai

1

Transportas

165

0

0

Paskutinis svarstymas

Projektiniai pasiūlymai
Statusas

Dokumentai
Tai yra visuomenės aptarimui pateikti pasiūlymai ir gali skirtis nuo galutinių savivaldybės patvirtintų sprendinių

Peržiūrėti dokumentą Peržiūrėti dokumentą

Informacijos šaltinis

Atidaryti


Susijusios įmonės

Reklama
Metų laikai
Metų laikai
4 etapas jau čia!
Dar 187 butai pirkėjų pamėgtame projekte „Metų laikai“. Prasidėjo paskutinio, 4 etapo pardavimai – išsirinkite geriausią variantą jau dabar.

Vieta   Įterpti

Planuojamas Nauja statyba
Pradžia

2025 Q3

Pabaiga

2027 Q3

Etapai
Projekto numeris